BOSCH Blechschraube DIN 7971-BZ4,8x32 | Ersatzteile für 11306 | 2910211037

Artikelnummer: EB-0611306034-2910211037

Position: 79

Marke: BOSCH


Bitte Kompatibilität prüfen!

Bitte prüfen Sie unbedingt die 10-stellige Typennummer Ihrer Maschine / Ihres Gerätes. Das Ersatzteil ist nur kompatibel, wenn Sie die Typennummer Ihrer Maschine in der unten stehenden Produktbeschreibung finden.

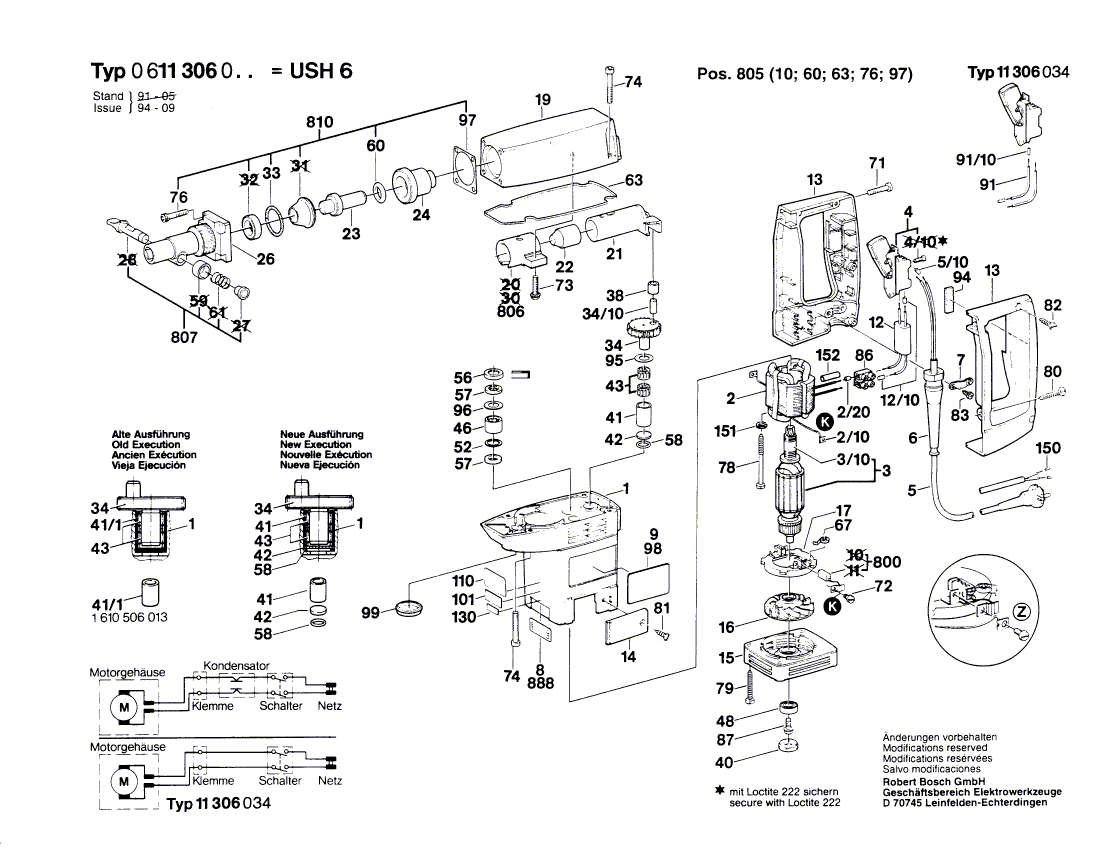
Bitte prüfen Sie ebenfalls detailliert die Explosionszeichnung mit Ihrem Artikelwunsch und der jeweiligen Pos-Nummer.

Alle Elemente, welche vom schwarzen Strich der Pos-Nummer ausgehend berührt / erfasst werden, gehören zu dieser Pos-Nummer und somit zu diesem Artikel. Jede Pos-Nummer ist ein eigenständiger Artikel, welchen Sie in der Auflistung finden.

Sie erhalten stets die aktuellste, neueste Produktversion zu der gewählten Pos-Nummer seitens des Herstellers. Es kann daher je nach Gerätealter vorkommen, dass Sie ggf. weitere, zugehörige Elemente, welche an diese Pos-Nummer grenzen, ebenfalls mittauschen müssen.

Nähere Informationen finden Sie unter dem Link
Hinweise zu Ihrer BOSCH Ersatzteilsuche

Preisübersicht

Einzelpreis: 3,94 €* (Brutto: 4,69 €)
Gesamtpreis: 3,94 €* 
Position:

Lieferzeit: 5 Werktage


Beschreibung

  • Blechschraube DIN 7971-BZ4,8x32
  • Original Bosch Zubehör / BOSCH Ersatzteil (2910211037)
  • im Gerät verbaut: 1
Dieses BOSCH Ersatzteil ist mit folgendem Gerät und Modell kompatibel:
  • BOSCH Gerätename: 11306
  • BOSCH Explosionszeichnung: Position 79
  • BOSCH Typennummer: 0611306034
  • BOSCH Typennummer alternative Schreibweisen: 0 611 306 034, 0611 306 034, 0.611.306.034, 0-611-306-034
    Bitte prüfen Sie diese Typennummer auf Ihrem Gerät um die Kompatibilität des BOSCH Ersatzteils zu gewährleisten.
Weitere BOSCH Ersatzteile des Gerätes 11306 (Gw-Schlaghammer) mit der Typennummer 0611306034 finden Sie in der nachfolgenden Darstellung und im Dropdown zu Ihrer Auswahl:

Pos.
1
BOSCH Motorgehäuse | Ersatzteile für 11306 | 1615102138
Hersteller: BOSCH
Artikelnummer: EB-0611306034-1615102138
nur Informationsartikel
Nie mehr lieferbar
keine Alternativen
Pos.
12/10
BOSCH Aderendhülse | Ersatzteile für 11306 | 3604477009
Hersteller: BOSCH
Artikelnummer: EB-0611306034-3604477009
Netto: 4,56 € zzgl. MwSt.
zzgl. 6,90 € Versand (brutto)
einmalig pro Bestellung

Lieferzeit: 5 Werktage

Pos.
3/10
BOSCH Lagerbuchse | Ersatzteile für 11306 | 1610300045
Hersteller: BOSCH
Artikelnummer: EB-0611306034-1610300045
nur Informationsartikel
Nie mehr lieferbar
keine Alternativen
Pos.
34/10
BOSCH Lagerbolzen | Ersatzteile für 11306 | 1613100011
Hersteller: BOSCH
Artikelnummer: EB-0611306034-1613100011
Netto: 5,17 € zzgl. MwSt.
zzgl. 6,90 € Versand (brutto)
einmalig pro Bestellung

Lieferzeit: 5 Werktage

Pos.
652/10
BOSCH Spitzmeissel | Ersatzteile für 11306 | 1618630016
Hersteller: BOSCH
Artikelnummer: EB-0611306034-1618630016
nur Informationsartikel
Nie mehr lieferbar
keine Alternativen
Pos.
652/20
BOSCH Schutzkappe | Ersatzteile für 11306 | 1610508009
Hersteller: BOSCH
Artikelnummer: EB-0611306034-2600508042
nur Informationsartikel
Nie mehr lieferbar
keine Alternativen
Pos.
652/20
BOSCH Verschlusskappe Ø15xØ27,5x36 MM | Ersatzteile für 11306 | 1610508001
Hersteller: BOSCH
Artikelnummer: EB-0611306034-1610508001
nur Informationsartikel
Nie mehr lieferbar
keine Alternativen
Pos.
2
BOSCH Polschuh 110-115V | Ersatzteile für 11306 | 1614220056
Hersteller: BOSCH
Artikelnummer: EB-0611306034-1614220056
nur Informationsartikel
Nie mehr lieferbar
keine Alternativen
Pos.
3
BOSCH Anker 110-115V | Ersatzteile für 11306 | 1614010015
Hersteller: BOSCH
Artikelnummer: EB-0611306034-1614010015
nur Informationsartikel
Nie mehr lieferbar
keine Alternativen
Pos.
4
BOSCH Ein/Aus-Schalter | Ersatzteile für 11306 | 1617200017
Hersteller: BOSCH
Artikelnummer: EB-0611306034-1617200017
nur Informationsartikel
Nie mehr lieferbar
keine Alternativen
Pos.
5
BOSCH Netzanschlussleitung USA/CDN 2,15m 2 x 2,08mm SJ 14/2 | Ersatzteile für 11306 | 1604460092
Hersteller: BOSCH
Artikelnummer: EB-0611306034-1604460092
Netto: 15,15 € zzgl. MwSt.
zzgl. 6,90 € Versand (brutto)
einmalig pro Bestellung

Lieferzeit: 5 Werktage

Pos.
6
BOSCH Tülle Ø9,2-Ø12x120 MM | Ersatzteile für 11306 | 3600703011
Hersteller: BOSCH
Artikelnummer: EB-0611306034-3600703011
Netto: 4,80 € zzgl. MwSt.
zzgl. 6,90 € Versand (brutto)
einmalig pro Bestellung

Lieferzeit: 5 Werktage

Pos.
7
BOSCH Befestigungsschelle | Ersatzteile für 11306 | 1601302013
Hersteller: BOSCH
Artikelnummer: EB-0611306034-1601302013
nur Informationsartikel
Nie mehr lieferbar
keine Alternativen
Pos.
9
BOSCH Firmenschild | Ersatzteile für 11306 | 1611110486
Hersteller: BOSCH
Artikelnummer: EB-0611306034-1611110486
nur Informationsartikel
Nie mehr lieferbar
keine Alternativen
Pos.
13
BOSCH Handgriff SCHWARZ | Ersatzteile für 11306 | 1615132019
Hersteller: BOSCH
Artikelnummer: EB-0611306034-1615132019
nur Informationsartikel
Nie mehr lieferbar
keine Alternativen
Pos.
14
BOSCH Verschlussdeckel BLAU | Ersatzteile für 11306 | 1615500283
Hersteller: BOSCH
Artikelnummer: EB-0611306034-1615500283
nur Informationsartikel
Nie mehr lieferbar
keine Alternativen
Pos.
15
BOSCH Lagerdeckel | Ersatzteile für 11306 | 1615808070
Hersteller: BOSCH
Artikelnummer: EB-0611306034-1615808070
nur Informationsartikel
Nie mehr lieferbar
keine Alternativen
Pos.
16
BOSCH Lüfter | Ersatzteile für 11306 | 1616610053
Hersteller: BOSCH
Artikelnummer: EB-0611306034-1616610053
nur Informationsartikel
Nie mehr lieferbar
keine Alternativen
Pos.
17
BOSCH Bürstenhalter | Ersatzteile für 11306 | 1614336000
Hersteller: BOSCH
Artikelnummer: EB-0611306034-1614336000
nur Informationsartikel
Nie mehr lieferbar
keine Alternativen
Pos.
19
BOSCH Getriebegehäuse | Ersatzteile für 11306 | 1615806044
Hersteller: BOSCH
Artikelnummer: EB-0611306034-1615806044
nur Informationsartikel
Nie mehr lieferbar
keine Alternativen
Pos.
21
BOSCH Hammerkolben | Ersatzteile für 11306 | 1618700049
Hersteller: BOSCH
Artikelnummer: EB-0611306034-1618700049
nur Informationsartikel
Nie mehr lieferbar
keine Alternativen
Pos.
22
BOSCH Schläger | Ersatzteile für 11306 | 1618710043
Hersteller: BOSCH
Artikelnummer: EB-0611306034-1618710043
nur Informationsartikel
Nie mehr lieferbar
keine Alternativen
Pos.
23
BOSCH Schlagbolzen | Ersatzteile für 11306 | 1613124025
Hersteller: BOSCH
Artikelnummer: EB-0611306034-1613124025
nur Informationsartikel
Nie mehr lieferbar
keine Alternativen
Pos.
24
BOSCH Führungsbuchse | Ersatzteile für 11306 | 1610521009
Hersteller: BOSCH
Artikelnummer: EB-0611306034-1610521009
nur Informationsartikel
Nie mehr lieferbar
keine Alternativen
Pos.
26
BOSCH Werkzeughalter | Ersatzteile für 11306 | 1618597023
Hersteller: BOSCH
Artikelnummer: EB-0611306034-1618597023
nur Informationsartikel
Nie mehr lieferbar
keine Alternativen
Pos.
33
BOSCH O-Ring 34,0x5,0 MM | Ersatzteile für 11306 | 1610210072
Hersteller: BOSCH
Artikelnummer: EB-0611306034-1610210072
nur Informationsartikel
Nie mehr lieferbar
keine Alternativen
Pos.
34
BOSCH Exzenterwelle Z=36 | Ersatzteile für 11306 | 1616110025
Hersteller: BOSCH
Artikelnummer: EB-0611306034-1616110025
nur Informationsartikel
Nie mehr lieferbar
keine Alternativen
Pos.
38
BOSCH Lagerbuchse | Ersatzteile für 11306 | 1610300046
Hersteller: BOSCH
Artikelnummer: EB-0611306034-1610300046
nur Informationsartikel
Nie mehr lieferbar
keine Alternativen
Pos.
40
BOSCH Gewindering | Ersatzteile für 11306 | 1613344002
Hersteller: BOSCH
Artikelnummer: EB-0611306034-1613344002
nur Informationsartikel
Nie mehr lieferbar
keine Alternativen
Pos.
41
BOSCH Lagerhülse | Ersatzteile für 11306 | 1610400029
Hersteller: BOSCH
Artikelnummer: EB-0611306034-1610400029
nur Informationsartikel
Nie mehr lieferbar
keine Alternativen
Pos.
42
BOSCH Abdeckscheibe | Ersatzteile für 11306 | 1610000002
Hersteller: BOSCH
Artikelnummer: EB-0611306034-1610000002
nur Informationsartikel
Nie mehr lieferbar
keine Alternativen
Pos.
43
BOSCH Nadelkranz Ø13 MM | Ersatzteile für 11306 | 1610913004
Hersteller: BOSCH
Artikelnummer: EB-0611306034-1610913004
nur Informationsartikel
Nie mehr lieferbar
keine Alternativen
Pos.
46
BOSCH Nadelhülse | Ersatzteile für 11306 | 1600910011
Hersteller: BOSCH
Artikelnummer: EB-0611306034-1600910011
Netto: 13,81 € zzgl. MwSt.
zzgl. 6,90 € Versand (brutto)
einmalig pro Bestellung

Lieferzeit: 5 Werktage

Pos.
48
BOSCH Kugellager 9x26x8 | Ersatzteile für 11306 | 1900905025
Hersteller: BOSCH
Artikelnummer: EB-0611306034-1900905025
Netto: 16,70 € zzgl. MwSt.
zzgl. 6,90 € Versand (brutto)
einmalig pro Bestellung

Lieferzeit: 5 Werktage

Pos.
52
BOSCH Stützscheibe 1,5 MM DICK | Ersatzteile für 11306 | 1610101607
Hersteller: BOSCH
Artikelnummer: EB-0611306034-1610101607
nur Informationsartikel
Nie mehr lieferbar
keine Alternativen
Pos.
56
BOSCH Haltering | Ersatzteile für 11306 | 1610500004
Hersteller: BOSCH
Artikelnummer: EB-0611306034-1610500004
nur Informationsartikel
Nie mehr lieferbar
keine Alternativen
Pos.
57
BOSCH Filzring | Ersatzteile für 11306 | 1610205002
Hersteller: BOSCH
Artikelnummer: EB-0611306034-1610205002
Netto: 3,60 € zzgl. MwSt.
zzgl. 6,90 € Versand (brutto)
einmalig pro Bestellung

Lieferzeit: 5 Werktage

Pos.
58
BOSCH O-Ring 20,0x1,5 MM | Ersatzteile für 11306 | 1610210075
Hersteller: BOSCH
Artikelnummer: EB-0611306034-1610210075
Netto: 4,56 € zzgl. MwSt.
zzgl. 6,90 € Versand (brutto)
einmalig pro Bestellung

Lieferzeit: 5 Werktage

Pos.
60
BOSCH O-Ring 18,0x6,0 MM | Ersatzteile für 11306 | 1610210050
Hersteller: BOSCH
Artikelnummer: EB-0611306034-1610210050
nur Informationsartikel
Nie mehr lieferbar
keine Alternativen
Pos.
63
BOSCH Dichtrahmen | Ersatzteile für 11306 | 1611015018
Hersteller: BOSCH
Artikelnummer: EB-0611306034-1611015018
nur Informationsartikel
Nie mehr lieferbar
keine Alternativen
Pos.
67
BOSCH Spiralfeder | Ersatzteile für 11306 | 1604652006
Hersteller: BOSCH
Artikelnummer: EB-0611306034-1604652006
Netto: 3,94 € zzgl. MwSt.
zzgl. 6,90 € Versand (brutto)
einmalig pro Bestellung

Lieferzeit: 5 Werktage

Pos.
71
BOSCH Zylinderschraube DIN 84-AM5x25-5.8 | Ersatzteile für 11306 | 2910011164
Hersteller: BOSCH
Artikelnummer: EB-0611306034-2910011164
nur Informationsartikel
Nie mehr lieferbar
keine Alternativen
Pos.
72
BOSCH Zylinderschraube DIN 84-AM4x8-8.8 | Ersatzteile für 11306 | 2910021118
Hersteller: BOSCH
Artikelnummer: EB-0611306034-2910021118
nur Informationsartikel
Nie mehr lieferbar
keine Alternativen
Pos.
73
BOSCH Sechskantschraube | Ersatzteile für 11306 | 1613454002
Hersteller: BOSCH
Artikelnummer: EB-0611306034-1613454002
nur Informationsartikel
Nie mehr lieferbar
keine Alternativen
Pos.
74
BOSCH Innensechskantschraube DIN 912-M 5x35-8.8 | Ersatzteile für 11306 | 2910141168
Hersteller: BOSCH
Artikelnummer: EB-0611306034-2910141168
Netto: 4,80 € zzgl. MwSt.
zzgl. 6,90 € Versand (brutto)
einmalig pro Bestellung

Lieferzeit: 5 Werktage

Pos.
76
BOSCH Federring M6 | Ersatzteile für 11306 | 2916690005
Hersteller: BOSCH
Artikelnummer: EB-0611306034-2916690005
nur Informationsartikel
Nie mehr lieferbar
keine Alternativen
Pos.
76
BOSCH Innensechskantschraube M 6X30 | Ersatzteile für 11306 | 1613414006
Hersteller: BOSCH
Artikelnummer: EB-0611306034-1613414006
nur Informationsartikel
Nie mehr lieferbar
keine Alternativen
Pos.
78
BOSCH Blechschraube BZ4,8x63 MM | Ersatzteile für 11306 | 1603435008
Hersteller: BOSCH
Artikelnummer: EB-0611306034-1603435008
Netto: 3,95 € zzgl. MwSt.
zzgl. 6,90 € Versand (brutto)
einmalig pro Bestellung

Lieferzeit: 5 Werktage

Pos.
79
BOSCH Blechschraube DIN 7971-BZ4,8x32 | Ersatzteile für 11306 | 2910211037
Hersteller: BOSCH
Artikelnummer: EB-0611306034-2910211037
Netto: 3,94 € zzgl. MwSt.
zzgl. 6,90 € Versand (brutto)
einmalig pro Bestellung

Lieferzeit: 5 Werktage

Pos.
80
BOSCH Blechschraube DIN 7971-ST4,8x25-F | Ersatzteile für 11306 | 2910211036
Hersteller: BOSCH
Artikelnummer: EB-0611306034-2910211036
Netto: 3,60 € zzgl. MwSt.
zzgl. 6,90 € Versand (brutto)
einmalig pro Bestellung

Lieferzeit: 5 Werktage

Pos.
81
BOSCH Blechschraube DIN 7972-B3,9x13 | Ersatzteile für 11306 | 2910601118
Hersteller: BOSCH
Artikelnummer: EB-0611306034-2910601118
Netto: 3,60 € zzgl. MwSt.
zzgl. 6,90 € Versand (brutto)
einmalig pro Bestellung

Lieferzeit: 5 Werktage

Pos.
82
BOSCH Blechschraube DIN 7971-BZ3,5x13 | Ersatzteile für 11306 | 2910211011
Hersteller: BOSCH
Artikelnummer: EB-0611306034-2910211011
Netto: 3,60 € zzgl. MwSt.
zzgl. 6,90 € Versand (brutto)
einmalig pro Bestellung

Lieferzeit: 5 Werktage

Pos.
83
BOSCH Blechschraube DIN 7971-ST3,9x13-F | Ersatzteile für 11306 | 2910211018
Hersteller: BOSCH
Artikelnummer: EB-0611306034-2910211018
Netto: 3,60 € zzgl. MwSt.
zzgl. 6,90 € Versand (brutto)
einmalig pro Bestellung

Lieferzeit: 5 Werktage

Pos.
83
BOSCH Zylinderschraube DIN 84-AM4x6-8.8 | Ersatzteile für 11306 | 2910021116
Hersteller: BOSCH
Artikelnummer: EB-0611306034-2910021116
Netto: 4,36 € zzgl. MwSt.
zzgl. 6,90 € Versand (brutto)
einmalig pro Bestellung

Lieferzeit: 5 Werktage

Pos.
86
BOSCH Klemmenleiste | Ersatzteile für 11306 | 1901091110
Hersteller: BOSCH
Artikelnummer: EB-0611306034-1901091110
Netto: 3,94 € zzgl. MwSt.
zzgl. 6,90 € Versand (brutto)
einmalig pro Bestellung

Lieferzeit: 5 Werktage

Pos.
87
BOSCH Sechskantschraube | Ersatzteile für 11306 | 1613454001
Hersteller: BOSCH
Artikelnummer: EB-0611306034-1613454001
nur Informationsartikel
Nie mehr lieferbar
keine Alternativen
Pos.
91
BOSCH Verbindungsleitung L=230 MM | Ersatzteile für 11306 | 1614437007
Hersteller: BOSCH
Artikelnummer: EB-0611306034-1614437007
nur Informationsartikel
Nie mehr lieferbar
keine Alternativen
Pos.
94
BOSCH Isolierstreifen 33x10x6 MM | Ersatzteile für 11306 | 1602381001
Hersteller: BOSCH
Artikelnummer: EB-0611306034-1602381001
nur Informationsartikel
Nie mehr lieferbar
keine Alternativen
Pos.
95
BOSCH Stützscheibe 0,5 MM DICK | Ersatzteile für 11306 | 1610101609
Hersteller: BOSCH
Artikelnummer: EB-0611306034-1610101609
nur Informationsartikel
Nie mehr lieferbar
keine Alternativen
Pos.
96
BOSCH Stützscheibe 1,5 MM DICK | Ersatzteile für 11306 | 1610102017
Hersteller: BOSCH
Artikelnummer: EB-0611306034-1610102017
nur Informationsartikel
Nie mehr lieferbar
keine Alternativen
Pos.
97
BOSCH Dichtplatte | Ersatzteile für 11306 | 1611015020
Hersteller: BOSCH
Artikelnummer: EB-0611306034-1611015020
Netto: 3,60 € zzgl. MwSt.
zzgl. 6,90 € Versand (brutto)
einmalig pro Bestellung

Lieferzeit: 5 Werktage

Pos.
98
BOSCH Firmenschild | Ersatzteile für 11306 | 1611110468
Hersteller: BOSCH
Artikelnummer: EB-0611306034-1611110468
nur Informationsartikel
Nie mehr lieferbar
keine Alternativen
Pos.
99
BOSCH Verschlussdeckel | Ersatzteile für 11306 | 1615500222
Hersteller: BOSCH
Artikelnummer: EB-0611306034-1615500222
nur Informationsartikel
Nie mehr lieferbar
keine Alternativen
Pos.
110
BOSCH Typschild ACHTUNG | Ersatzteile für 11306 | 1601110449
Hersteller: BOSCH
Artikelnummer: EB-0611306034-1601110449
nur Informationsartikel
Nie mehr lieferbar
keine Alternativen
Pos.
120
BOSCH Zusatzhandgriff M8 | Ersatzteile für 11306 | 1612025019
Hersteller: BOSCH
Artikelnummer: EB-0611306034-1612025019
Netto: 7,26 € zzgl. MwSt.
zzgl. 6,90 € Versand (brutto)
einmalig pro Bestellung

Lieferzeit: 5 Werktage

Pos.
121
BOSCH Klemmhalter | Ersatzteile für 11306 | 1618040077
Hersteller: BOSCH
Artikelnummer: EB-0611306034-1618040077
nur Informationsartikel
Nie mehr lieferbar
keine Alternativen
Pos.
122
BOSCH Gewindebolzen M8 | Ersatzteile für 11306 | 1613521001
Hersteller: BOSCH
Artikelnummer: EB-0611306034-1613521001
Netto: 6,75 € zzgl. MwSt.
zzgl. 6,90 € Versand (brutto)
einmalig pro Bestellung

Lieferzeit: 5 Werktage

Pos.
123
BOSCH Spannband Ø43 MM | Ersatzteile für 11306 | 1611316003
Hersteller: BOSCH
Artikelnummer: EB-0611306034-1611316003
Netto: 4,56 € zzgl. MwSt.
zzgl. 6,90 € Versand (brutto)
einmalig pro Bestellung

Lieferzeit: 5 Werktage

Pos.
124
BOSCH Zylinderstift | Ersatzteile für 11306 | 1613100012
Hersteller: BOSCH
Artikelnummer: EB-0611306034-1613100012
Netto: 4,56 € zzgl. MwSt.
zzgl. 6,90 € Versand (brutto)
einmalig pro Bestellung

Lieferzeit: 5 Werktage

Pos.
651
BOSCH Tragkasten | Ersatzteile für 11306 | 1615438090
Hersteller: BOSCH
Artikelnummer: EB-0611306034-1615438090
nur Informationsartikel
Nie mehr lieferbar
keine Alternativen
Pos.
800
BOSCH Kohlebürstensatz | Ersatzteile für 11306 | 1617014108
Hersteller: BOSCH
Artikelnummer: EB-0611306034-1617014108
Netto: 15,15 € zzgl. MwSt.
zzgl. 6,90 € Versand (brutto)
einmalig pro Bestellung

Lieferzeit: 5 Werktage

Pos.
805
BOSCH Verschleissteilsatz | Ersatzteile für 11306 | 1617000058
Hersteller: BOSCH
Artikelnummer: EB-0611306034-1617000058
nur Informationsartikel
Nie mehr lieferbar
keine Alternativen
Pos.
806
BOSCH Lagerbock | Ersatzteile für 11306 | 1615819004
Hersteller: BOSCH
Artikelnummer: EB-0611306034-1615819004
nur Informationsartikel
Nie mehr lieferbar
keine Alternativen
Pos.
807
BOSCH Sperrbolzen-Set | Ersatzteile für 11306 | 1617000014
Hersteller: BOSCH
Artikelnummer: EB-0611306034-1617000014
nur Informationsartikel
Nie mehr lieferbar
keine Alternativen
Pos.
810
BOSCH Teilesatz | Ersatzteile für 11306 | 1617000092
Hersteller: BOSCH
Artikelnummer: EB-0611306034-1617000092
nur Informationsartikel
Nie mehr lieferbar
keine Alternativen
Pos.
813
BOSCH Zusatzhandgriff Ø43 MM | Ersatzteile für 11306 | 1612025020
Hersteller: BOSCH
Artikelnummer: EB-0611306034-1612025020
Netto: 38,64 € zzgl. MwSt.
zzgl. 6,90 € Versand (brutto)
einmalig pro Bestellung

Lieferzeit: 5 Werktage

Pos.
814
BOSCH Teilesatz | Ersatzteile für 11306 | 1617000038
Hersteller: BOSCH
Artikelnummer: EB-0611306034-1617000038
nur Informationsartikel
Nie mehr lieferbar
keine Alternativen
Pos.
888
BOSCH Typschild | Ersatzteile für 11306 | 160111A3H3
Hersteller: BOSCH
Artikelnummer: EB-0611306034-160111A3H3
Netto: 4,56 € zzgl. MwSt.
zzgl. 6,90 € Versand (brutto)
einmalig pro Bestellung

Lieferzeit: 5 Werktage

Angaben zur Produktsicherheit

Hersteller:
Robert Bosch Power Tools GmbH
Postfach 30 02 20
70442 Stuttgart

E-Mail:
kontakt@bosch.de