BOSCH Reinigungsnadel | Ersatzteile für 3D20 | 1619PA7889

Artikelnummer: EB-F0133D2045-1619PA7889

Position: 207

Marke: BOSCH


Bitte Kompatibilität prüfen!

Bitte prüfen Sie unbedingt die 10-stellige Typennummer Ihrer Maschine / Ihres Gerätes. Das Ersatzteil ist nur kompatibel, wenn Sie die Typennummer Ihrer Maschine in der unten stehenden Produktbeschreibung finden.

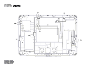
Bitte prüfen Sie ebenfalls detailliert die Explosionszeichnung mit Ihrem Artikelwunsch und der jeweiligen Pos-Nummer.

Alle Elemente, welche vom schwarzen Strich der Pos-Nummer ausgehend berührt / erfasst werden, gehören zu dieser Pos-Nummer und somit zu diesem Artikel. Jede Pos-Nummer ist ein eigenständiger Artikel, welchen Sie in der Auflistung finden.

Sie erhalten stets die aktuellste, neueste Produktversion zu der gewählten Pos-Nummer seitens des Herstellers. Es kann daher je nach Gerätealter vorkommen, dass Sie ggf. weitere, zugehörige Elemente, welche an diese Pos-Nummer grenzen, ebenfalls mittauschen müssen.

Nähere Informationen finden Sie unter dem Link
Hinweise zu Ihrer BOSCH Ersatzteilsuche

Preisübersicht

Einzelpreis: 3,63 €* (Brutto: 4,32 €)
Gesamtpreis: 3,63 €* 
Position:

Lieferzeit: 5 Werktage


Beschreibung

  • Reinigungsnadel
  • Original Bosch Zubehör / BOSCH Ersatzteil (1619PA7889)
  • im Gerät verbaut: 1
Dieses BOSCH Ersatzteil ist mit folgendem Gerät und Modell kompatibel:
  • BOSCH Gerätename: 3D20
  • BOSCH Explosionszeichnung: Position 207
  • BOSCH Typennummer: F0133D2045
  • BOSCH Typennummer alternative Schreibweisen: F 013 3D2 045, F013 3D2 045, F.013.3D2.045, F-013-3D2-045
    Bitte prüfen Sie diese Typennummer auf Ihrem Gerät um die Kompatibilität des BOSCH Ersatzteils zu gewährleisten.
Weitere BOSCH Ersatzteile des Gerätes 3D20 (Drucker) mit der Typennummer F0133D2045 finden Sie in der nachfolgenden Darstellung und im Dropdown zu Ihrer Auswahl:

Pos.
2
BOSCH Schrittmotor | Ersatzteile für 3D20 | 1619PA7655
Hersteller: BOSCH
Artikelnummer: EB-F0133D2045-1619PA7655
nur Informationsartikel
Nie mehr lieferbar
keine Alternativen
Pos.
3
BOSCH Befestigungswinkel | Ersatzteile für 3D20 | 1619PA7656
Hersteller: BOSCH
Artikelnummer: EB-F0133D2045-1619PA7656
nur Informationsartikel
Nie mehr lieferbar
keine Alternativen
Pos.
4
BOSCH Innensechskantschraube | Ersatzteile für 3D20 | 1619PA7657
Hersteller: BOSCH
Artikelnummer: EB-F0133D2045-1619PA7657
nur Informationsartikel
Nie mehr lieferbar
keine Alternativen
Pos.
6
BOSCH Lenkstange | Ersatzteile für 3D20 | 1619PA7659
Hersteller: BOSCH
Artikelnummer: EB-F0133D2045-1619PA7659
nur Informationsartikel
Nie mehr lieferbar
keine Alternativen
Pos.
9
BOSCH Gehäuse | Ersatzteile für 3D20 | 1619PA7662
Hersteller: BOSCH
Artikelnummer: EB-F0133D2045-1619PA7662
Netto: 39,11 € zzgl. MwSt.
zzgl. 6,90 € Versand (brutto)
einmalig pro Bestellung

Lieferzeit: 5 Werktage

Pos.
10
BOSCH Befestigungswinkel | Ersatzteile für 3D20 | 1619PA7663
Hersteller: BOSCH
Artikelnummer: EB-F0133D2045-1619PA7663
Netto: 7,30 € zzgl. MwSt.
zzgl. 6,90 € Versand (brutto)
einmalig pro Bestellung

Lieferzeit: 5 Werktage

Pos.
12
BOSCH Senkschraube | Ersatzteile für 3D20 | 1619PA7665
Hersteller: BOSCH
Artikelnummer: EB-F0133D2045-1619PA7665
Netto: 3,63 € zzgl. MwSt.
zzgl. 6,90 € Versand (brutto)
einmalig pro Bestellung

Lieferzeit: 5 Werktage

Pos.
13
BOSCH Kontaktlasche | Ersatzteile für 3D20 | 1619PA7666
Hersteller: BOSCH
Artikelnummer: EB-F0133D2045-1619PA7666
Netto: 3,63 € zzgl. MwSt.
zzgl. 6,90 € Versand (brutto)
einmalig pro Bestellung

Lieferzeit: 5 Werktage

Pos.
14
BOSCH Kfz-Halterung | Ersatzteile für 3D20 | 1619PA7667
Hersteller: BOSCH
Artikelnummer: EB-F0133D2045-1619PA7667
Netto: 9,18 € zzgl. MwSt.
zzgl. 6,90 € Versand (brutto)
einmalig pro Bestellung

Lieferzeit: 5 Werktage

Pos.
16
BOSCH Verschluss | Ersatzteile für 3D20 | 1619PA7669
Hersteller: BOSCH
Artikelnummer: EB-F0133D2045-1619PA7669
Netto: 9,18 € zzgl. MwSt.
zzgl. 6,90 € Versand (brutto)
einmalig pro Bestellung

Lieferzeit: 5 Werktage

Pos.
17
BOSCH Modulplatte | Ersatzteile für 3D20 | 1619PA7670
Hersteller: BOSCH
Artikelnummer: EB-F0133D2045-1619PA7670
Netto: 6,15 € zzgl. MwSt.
zzgl. 6,90 € Versand (brutto)
einmalig pro Bestellung

Lieferzeit: 5 Werktage

Pos.
18
BOSCH Gehäuse | Ersatzteile für 3D20 | 1619PA7671
Hersteller: BOSCH
Artikelnummer: EB-F0133D2045-1619PA7671
Netto: 39,11 € zzgl. MwSt.
zzgl. 6,90 € Versand (brutto)
einmalig pro Bestellung

Lieferzeit: 5 Werktage

Pos.
19
BOSCH Haltewinkel | Ersatzteile für 3D20 | 1619PA7672
Hersteller: BOSCH
Artikelnummer: EB-F0133D2045-1619PA7672
Netto: 4,32 € zzgl. MwSt.
zzgl. 6,90 € Versand (brutto)
einmalig pro Bestellung

Lieferzeit: 5 Werktage

Pos.
20
BOSCH Blechschraube | Ersatzteile für 3D20 | 1619PA7673
Hersteller: BOSCH
Artikelnummer: EB-F0133D2045-1619PA7673
Netto: 3,59 € zzgl. MwSt.
zzgl. 6,90 € Versand (brutto)
einmalig pro Bestellung

Lieferzeit: 5 Werktage

Pos.
21
BOSCH Seitenblech | Ersatzteile für 3D20 | 1619PA7674
Hersteller: BOSCH
Artikelnummer: EB-F0133D2045-1619PA7674
Netto: 8,33 € zzgl. MwSt.
zzgl. 6,90 € Versand (brutto)
einmalig pro Bestellung

Lieferzeit: 5 Werktage

Pos.
25
BOSCH Elektronikplatte | Ersatzteile für 3D20 | 1619PA7678
Hersteller: BOSCH
Artikelnummer: EB-F0133D2045-1619PA7678
Netto: 135,20 € zzgl. MwSt.
zzgl. 6,90 € Versand (brutto)
einmalig pro Bestellung

Lieferzeit: 5 Werktage

Pos.
27
BOSCH Stromversorgung | Ersatzteile für 3D20 | 1619PA7680
Hersteller: BOSCH
Artikelnummer: EB-F0133D2045-1619PA7680
Netto: 135,20 € zzgl. MwSt.
zzgl. 6,90 € Versand (brutto)
einmalig pro Bestellung

Lieferzeit: 5 Werktage

Pos.
29
BOSCH Deckplatte | Ersatzteile für 3D20 | 1619PA7682
Hersteller: BOSCH
Artikelnummer: EB-F0133D2045-1619PA7682
Netto: 63,99 € zzgl. MwSt.
zzgl. 6,90 € Versand (brutto)
einmalig pro Bestellung

Lieferzeit: 5 Werktage

Pos.
30
BOSCH El-Hauptplatte | Ersatzteile für 3D20 | 1619PA7683
Hersteller: BOSCH
Artikelnummer: EB-F0133D2045-1619PA7683
Netto: 121,18 € zzgl. MwSt.
zzgl. 6,90 € Versand (brutto)
einmalig pro Bestellung

Lieferzeit: 5 Werktage

Pos.
33
BOSCH Gehäuse | Ersatzteile für 3D20 | 1619PA7686
Hersteller: BOSCH
Artikelnummer: EB-F0133D2045-1619PA7686
Netto: 39,11 € zzgl. MwSt.
zzgl. 6,90 € Versand (brutto)
einmalig pro Bestellung

Lieferzeit: 5 Werktage

Pos.
34
BOSCH Innensechskantschraube | Ersatzteile für 3D20 | 1619PA7687
Hersteller: BOSCH
Artikelnummer: EB-F0133D2045-1619PA7687
Netto: 3,63 € zzgl. MwSt.
zzgl. 6,90 € Versand (brutto)
einmalig pro Bestellung

Lieferzeit: 5 Werktage

Pos.
35
BOSCH Hauptschalter | Ersatzteile für 3D20 | 1619PA7688
Hersteller: BOSCH
Artikelnummer: EB-F0133D2045-1619PA7688
Netto: 10,92 € zzgl. MwSt.
zzgl. 6,90 € Versand (brutto)
einmalig pro Bestellung

Lieferzeit: 5 Werktage

Pos.
36
BOSCH Haltewinkel | Ersatzteile für 3D20 | 1619PA7689
Hersteller: BOSCH
Artikelnummer: EB-F0133D2045-1619PA7689
Netto: 3,63 € zzgl. MwSt.
zzgl. 6,90 € Versand (brutto)
einmalig pro Bestellung

Lieferzeit: 5 Werktage

Pos.
37
BOSCH Befestigungswinkel | Ersatzteile für 3D20 | 1619PA7690
Hersteller: BOSCH
Artikelnummer: EB-F0133D2045-1619PA7690
Netto: 8,33 € zzgl. MwSt.
zzgl. 6,90 € Versand (brutto)
einmalig pro Bestellung

Lieferzeit: 5 Werktage

Pos.
38
BOSCH Modulplatte | Ersatzteile für 3D20 | 1619PA7691
Hersteller: BOSCH
Artikelnummer: EB-F0133D2045-1619PA7691
Netto: 5,67 € zzgl. MwSt.
zzgl. 6,90 € Versand (brutto)
einmalig pro Bestellung

Lieferzeit: 5 Werktage

Pos.
39
BOSCH Gehäusedeckel | Ersatzteile für 3D20 | 1619PA7692
Hersteller: BOSCH
Artikelnummer: EB-F0133D2045-1619PA7692
Netto: 42,86 € zzgl. MwSt.
zzgl. 6,90 € Versand (brutto)
einmalig pro Bestellung

Lieferzeit: 5 Werktage

Pos.
41
BOSCH Hutmutter | Ersatzteile für 3D20 | 1619PA7694
Hersteller: BOSCH
Artikelnummer: EB-F0133D2045-1619PA7694
Netto: 3,59 € zzgl. MwSt.
zzgl. 6,90 € Versand (brutto)
einmalig pro Bestellung

Lieferzeit: 5 Werktage

Pos.
42
BOSCH Klemmutter | Ersatzteile für 3D20 | 1619PA7695
Hersteller: BOSCH
Artikelnummer: EB-F0133D2045-1619PA7695
Netto: 4,82 € zzgl. MwSt.
zzgl. 6,90 € Versand (brutto)
einmalig pro Bestellung

Lieferzeit: 5 Werktage

Pos.
43
BOSCH Platte | Ersatzteile für 3D20 | 1619PA7696
Hersteller: BOSCH
Artikelnummer: EB-F0133D2045-1619PA7696
Netto: 26,88 € zzgl. MwSt.
zzgl. 6,90 € Versand (brutto)
einmalig pro Bestellung

Lieferzeit: 5 Werktage

Pos.
44
BOSCH Haftkissen | Ersatzteile für 3D20 | 1619PA7697
Hersteller: BOSCH
Artikelnummer: EB-F0133D2045-1619PA7697
Netto: 3,63 € zzgl. MwSt.
zzgl. 6,90 € Versand (brutto)
einmalig pro Bestellung

Lieferzeit: 5 Werktage

Pos.
47
BOSCH Führungsrohr | Ersatzteile für 3D20 | 1619PA7700
Hersteller: BOSCH
Artikelnummer: EB-F0133D2045-1619PA7700
Netto: 3,92 € zzgl. MwSt.
zzgl. 6,90 € Versand (brutto)
einmalig pro Bestellung

Lieferzeit: 5 Werktage

Pos.
48
BOSCH Befestigungswinkel | Ersatzteile für 3D20 | 1619PA7701
Hersteller: BOSCH
Artikelnummer: EB-F0133D2045-1619PA7701
Netto: 4,32 € zzgl. MwSt.
zzgl. 6,90 € Versand (brutto)
einmalig pro Bestellung

Lieferzeit: 5 Werktage

Pos.
51
BOSCH Gummi-Ohrkissen | Ersatzteile für 3D20 | 1619PA7704
Hersteller: BOSCH
Artikelnummer: EB-F0133D2045-1619PA7704
Netto: 4,82 € zzgl. MwSt.
zzgl. 6,90 € Versand (brutto)
einmalig pro Bestellung

Lieferzeit: 5 Werktage

Pos.
54
BOSCH Befestigungswinkel | Ersatzteile für 3D20 | 1619PA7707
Hersteller: BOSCH
Artikelnummer: EB-F0133D2045-1619PA7707
Netto: 8,33 € zzgl. MwSt.
zzgl. 6,90 € Versand (brutto)
einmalig pro Bestellung

Lieferzeit: 5 Werktage

Pos.
65
BOSCH Kugellager | Ersatzteile für 3D20 | 1619PA7750
Hersteller: BOSCH
Artikelnummer: EB-F0133D2045-1619PA7750
Netto: 7,30 € zzgl. MwSt.
zzgl. 6,90 € Versand (brutto)
einmalig pro Bestellung

Lieferzeit: 5 Werktage

Pos.
66
BOSCH Lenkstange | Ersatzteile für 3D20 | 1619PA7719
Hersteller: BOSCH
Artikelnummer: EB-F0133D2045-1619PA7719
Netto: 14,36 € zzgl. MwSt.
zzgl. 6,90 € Versand (brutto)
einmalig pro Bestellung

Lieferzeit: 5 Werktage

Pos.
71
BOSCH Riemen | Ersatzteile für 3D20 | 1619PA7756
Hersteller: BOSCH
Artikelnummer: EB-F0133D2045-1619PA7756
Netto: 15,75 € zzgl. MwSt.
zzgl. 6,90 € Versand (brutto)
einmalig pro Bestellung

Lieferzeit: 5 Werktage

Pos.
77
BOSCH Innensechskantschraube | Ersatzteile für 3D20 | 1619PA7730
Hersteller: BOSCH
Artikelnummer: EB-F0133D2045-1619PA7730
Netto: 3,63 € zzgl. MwSt.
zzgl. 6,90 € Versand (brutto)
einmalig pro Bestellung

Lieferzeit: 5 Werktage

Pos.
78
BOSCH Riemen | Ersatzteile für 3D20 | 1619PA7763
Hersteller: BOSCH
Artikelnummer: EB-F0133D2045-1619PA7763
Netto: 8,33 € zzgl. MwSt.
zzgl. 6,90 € Versand (brutto)
einmalig pro Bestellung

Lieferzeit: 5 Werktage

Pos.
82
BOSCH Eckwinkel | Ersatzteile für 3D20 | 1619PA7735
Hersteller: BOSCH
Artikelnummer: EB-F0133D2045-1619PA7735
Netto: 14,36 € zzgl. MwSt.
zzgl. 6,90 € Versand (brutto)
einmalig pro Bestellung

Lieferzeit: 5 Werktage

Pos.
83
BOSCH Lenkstange | Ersatzteile für 3D20 | 1619PA7736
Hersteller: BOSCH
Artikelnummer: EB-F0133D2045-1619PA7736
Netto: 15,75 € zzgl. MwSt.
zzgl. 6,90 € Versand (brutto)
einmalig pro Bestellung

Lieferzeit: 5 Werktage

Pos.
84
BOSCH Riemen | Ersatzteile für 3D20 | 1619PA7769
Hersteller: BOSCH
Artikelnummer: EB-F0133D2045-1619PA7769
Netto: 24,13 € zzgl. MwSt.
zzgl. 6,90 € Versand (brutto)
einmalig pro Bestellung

Lieferzeit: 5 Werktage

Pos.
85
BOSCH Innensechskantschraube | Ersatzteile für 3D20 | 1619PA7738
Hersteller: BOSCH
Artikelnummer: EB-F0133D2045-1619PA7738
Netto: 3,63 € zzgl. MwSt.
zzgl. 6,90 € Versand (brutto)
einmalig pro Bestellung

Lieferzeit: 5 Werktage

Pos.
95
BOSCH Federelement | Ersatzteile für 3D20 | 1619PA7748
Hersteller: BOSCH
Artikelnummer: EB-F0133D2045-1619PA7748
Netto: 3,94 € zzgl. MwSt.
zzgl. 6,90 € Versand (brutto)
einmalig pro Bestellung

Lieferzeit: 5 Werktage

Pos.
97
BOSCH Umlenkblech | Ersatzteile für 3D20 | 1619PA7718
Hersteller: BOSCH
Artikelnummer: EB-F0133D2045-1619PA7718
Netto: 7,30 € zzgl. MwSt.
zzgl. 6,90 € Versand (brutto)
einmalig pro Bestellung

Lieferzeit: 5 Werktage

Pos.
98
BOSCH Gebläse | Ersatzteile für 3D20 | 1619PA7751
Hersteller: BOSCH
Artikelnummer: EB-F0133D2045-1619PA7751
Netto: 21,16 € zzgl. MwSt.
zzgl. 6,90 € Versand (brutto)
einmalig pro Bestellung

Lieferzeit: 5 Werktage

Pos.
100
BOSCH Haltewinkel | Ersatzteile für 3D20 | 1619PA7753
Hersteller: BOSCH
Artikelnummer: EB-F0133D2045-1619PA7753
Netto: 8,33 € zzgl. MwSt.
zzgl. 6,90 € Versand (brutto)
einmalig pro Bestellung

Lieferzeit: 5 Werktage

Pos.
107
BOSCH Düse | Ersatzteile für 3D20 | 1619PA7760
Hersteller: BOSCH
Artikelnummer: EB-F0133D2045-1619PA7760
Netto: 22,25 € zzgl. MwSt.
zzgl. 6,90 € Versand (brutto)
einmalig pro Bestellung

Lieferzeit: 5 Werktage

Pos.
120
BOSCH Distanzhülse | Ersatzteile für 3D20 | 1619PA7773
Hersteller: BOSCH
Artikelnummer: EB-F0133D2045-1619PA7773
Netto: 3,62 € zzgl. MwSt.
zzgl. 6,90 € Versand (brutto)
einmalig pro Bestellung

Lieferzeit: 5 Werktage

Pos.
123
BOSCH Innensechskantschraube | Ersatzteile für 3D20 | 1619PA7776
Hersteller: BOSCH
Artikelnummer: EB-F0133D2045-1619PA7776
Netto: 3,63 € zzgl. MwSt.
zzgl. 6,90 € Versand (brutto)
einmalig pro Bestellung

Lieferzeit: 5 Werktage

Pos.
124
BOSCH Verkleidung | Ersatzteile für 3D20 | 1619PA7777
Hersteller: BOSCH
Artikelnummer: EB-F0133D2045-1619PA7777
Netto: 3,94 € zzgl. MwSt.
zzgl. 6,90 € Versand (brutto)
einmalig pro Bestellung

Lieferzeit: 5 Werktage

Pos.
125
BOSCH Blechschraube | Ersatzteile für 3D20 | 1619PA7778
Hersteller: BOSCH
Artikelnummer: EB-F0133D2045-1619PA7778
Netto: 3,63 € zzgl. MwSt.
zzgl. 6,90 € Versand (brutto)
einmalig pro Bestellung

Lieferzeit: 5 Werktage

Pos.
134
BOSCH Schelle | Ersatzteile für 3D20 | 1619PA7891
Hersteller: BOSCH
Artikelnummer: EB-F0133D2045-1619PA7891
Netto: 3,59 € zzgl. MwSt.
zzgl. 6,90 € Versand (brutto)
einmalig pro Bestellung

Lieferzeit: 5 Werktage

Pos.
137
BOSCH SD-Karte | Ersatzteile für 3D20 | 1619PA7894
Hersteller: BOSCH
Artikelnummer: EB-F0133D2045-1619PA7894
Netto: 32,74 € zzgl. MwSt.
zzgl. 6,90 € Versand (brutto)
einmalig pro Bestellung

Lieferzeit: 5 Werktage

Pos.
140
BOSCH Vorlegscheibe | Ersatzteile für 3D20 | 1619PA8040
Hersteller: BOSCH
Artikelnummer: EB-F0133D2045-1619PA8040
Netto: 3,63 € zzgl. MwSt.
zzgl. 6,90 € Versand (brutto)
einmalig pro Bestellung

Lieferzeit: 5 Werktage

Pos.
142
BOSCH Blechrohr | Ersatzteile für 3D20 | 1619PA9703
Hersteller: BOSCH
Artikelnummer: EB-F0133D2045-1619PA9703
Netto: 3,63 € zzgl. MwSt.
zzgl. 6,90 € Versand (brutto)
einmalig pro Bestellung

Lieferzeit: 5 Werktage

Pos.
144
BOSCH Drossel | Ersatzteile für 3D20 | 1619PA8043
Hersteller: BOSCH
Artikelnummer: EB-F0133D2045-1619PA8043
Netto: 26,88 € zzgl. MwSt.
zzgl. 6,90 € Versand (brutto)
einmalig pro Bestellung

Lieferzeit: 5 Werktage

Pos.
145
BOSCH Drossel | Ersatzteile für 3D20 | 2631163851
Hersteller: BOSCH
Artikelnummer: EB-F0133D2045-2631163851
Netto: 21,16 € zzgl. MwSt.
zzgl. 6,90 € Versand (brutto)
einmalig pro Bestellung

Lieferzeit: 5 Werktage

Pos.
147
BOSCH Massekabel | Ersatzteile für 3D20 | 1619PA8046
Hersteller: BOSCH
Artikelnummer: EB-F0133D2045-1619PA8046
Netto: 5,67 € zzgl. MwSt.
zzgl. 6,90 € Versand (brutto)
einmalig pro Bestellung

Lieferzeit: 5 Werktage

Pos.
148
BOSCH Vorlegscheibe | Ersatzteile für 3D20 | 1619PA8047
Hersteller: BOSCH
Artikelnummer: EB-F0133D2045-1619PA8047
Netto: 3,63 € zzgl. MwSt.
zzgl. 6,90 € Versand (brutto)
einmalig pro Bestellung

Lieferzeit: 5 Werktage

Pos.
171
BOSCH Kabelsatz | Ersatzteile für 3D20 | 1619PA8063
Hersteller: BOSCH
Artikelnummer: EB-F0133D2045-1619PA8063
Netto: 7,76 € zzgl. MwSt.
zzgl. 6,90 € Versand (brutto)
einmalig pro Bestellung

Lieferzeit: 5 Werktage

Pos.
172
BOSCH Kabelsatz | Ersatzteile für 3D20 | 1619PA8064
Hersteller: BOSCH
Artikelnummer: EB-F0133D2045-1619PA8064
Netto: 14,36 € zzgl. MwSt.
zzgl. 6,90 € Versand (brutto)
einmalig pro Bestellung

Lieferzeit: 5 Werktage

Pos.
174
BOSCH Kabelsatz | Ersatzteile für 3D20 | 1619PA8065
Hersteller: BOSCH
Artikelnummer: EB-F0133D2045-1619PA8065
Netto: 10,92 € zzgl. MwSt.
zzgl. 6,90 € Versand (brutto)
einmalig pro Bestellung

Lieferzeit: 5 Werktage

Pos.
175
BOSCH Kabelsatz | Ersatzteile für 3D20 | 1619PA8066
Hersteller: BOSCH
Artikelnummer: EB-F0133D2045-1619PA8066
Netto: 10,92 € zzgl. MwSt.
zzgl. 6,90 € Versand (brutto)
einmalig pro Bestellung

Lieferzeit: 5 Werktage

Pos.
176
BOSCH Kabelsatz | Ersatzteile für 3D20 | 1619PA8067
Hersteller: BOSCH
Artikelnummer: EB-F0133D2045-1619PA8067
Netto: 10,92 € zzgl. MwSt.
zzgl. 6,90 € Versand (brutto)
einmalig pro Bestellung

Lieferzeit: 5 Werktage

Pos.
177
BOSCH Kabelsatz | Ersatzteile für 3D20 | 1619PA8068
Hersteller: BOSCH
Artikelnummer: EB-F0133D2045-1619PA8068
Netto: 10,92 € zzgl. MwSt.
zzgl. 6,90 € Versand (brutto)
einmalig pro Bestellung

Lieferzeit: 5 Werktage

Pos.
178
BOSCH LED-Lampe | Ersatzteile für 3D20 | 1619PA8062
Hersteller: BOSCH
Artikelnummer: EB-F0133D2045-1619PA8062
Netto: 26,88 € zzgl. MwSt.
zzgl. 6,90 € Versand (brutto)
einmalig pro Bestellung

Lieferzeit: 5 Werktage

Pos.
205
BOSCH Nivellierelement | Ersatzteile für 3D20 | 1619PA7887
Hersteller: BOSCH
Artikelnummer: EB-F0133D2045-1619PA7887
Netto: 12,98 € zzgl. MwSt.
zzgl. 6,90 € Versand (brutto)
einmalig pro Bestellung

Lieferzeit: 5 Werktage

Pos.
206
BOSCH Schaber | Ersatzteile für 3D20 | 1619PA7888
Hersteller: BOSCH
Artikelnummer: EB-F0133D2045-1619PA7888
Netto: 6,70 € zzgl. MwSt.
zzgl. 6,90 € Versand (brutto)
einmalig pro Bestellung

Lieferzeit: 5 Werktage

Pos.
207
BOSCH Reinigungsnadel | Ersatzteile für 3D20 | 1619PA7889
Hersteller: BOSCH
Artikelnummer: EB-F0133D2045-1619PA7889
Netto: 3,63 € zzgl. MwSt.
zzgl. 6,90 € Versand (brutto)
einmalig pro Bestellung

Lieferzeit: 5 Werktage

Pos.
231
BOSCH Sicherungsmutter | Ersatzteile für 3D20 | 1619PA8100
Hersteller: BOSCH
Artikelnummer: EB-F0133D2045-1619PA8100
Netto: 3,63 € zzgl. MwSt.
zzgl. 6,90 € Versand (brutto)
einmalig pro Bestellung

Lieferzeit: 5 Werktage

Pos.
232
BOSCH Innensechskantschraube | Ersatzteile für 3D20 | 1619PA8101
Hersteller: BOSCH
Artikelnummer: EB-F0133D2045-1619PA8101
Netto: 3,63 € zzgl. MwSt.
zzgl. 6,90 € Versand (brutto)
einmalig pro Bestellung

Lieferzeit: 5 Werktage

Pos.
650
BOSCH Netzanschlussleitung AUS 1,8m | Ersatzteile für 3D20 | 2610039211
Hersteller: BOSCH
Artikelnummer: EB-F0133D2045-2610039211
Netto: 17,38 € zzgl. MwSt.
zzgl. 6,90 € Versand (brutto)
einmalig pro Bestellung

Lieferzeit: 5 Werktage

Pos.
650
BOSCH Netzanschlussleitung EU 230V 1,8m | Ersatzteile für 3D20 | 1619PA8373
Hersteller: BOSCH
Artikelnummer: EB-F0133D2045-1619PA8373
Netto: 15,75 € zzgl. MwSt.
zzgl. 6,90 € Versand (brutto)
einmalig pro Bestellung

Lieferzeit: 5 Werktage

Pos.
650
BOSCH Netzanschlussleitung UK 230V 1,8m | Ersatzteile für 3D20 | 1619PA8375
Hersteller: BOSCH
Artikelnummer: EB-F0133D2045-1619PA8375
Netto: 17,38 € zzgl. MwSt.
zzgl. 6,90 € Versand (brutto)
einmalig pro Bestellung

Lieferzeit: 5 Werktage

Pos.
650
BOSCH Stromversorgung CH | Ersatzteile für 3D20 | 1619PA9144
Hersteller: BOSCH
Artikelnummer: EB-F0133D2045-1619PA9144
Netto: 15,75 € zzgl. MwSt.
zzgl. 6,90 € Versand (brutto)
einmalig pro Bestellung

Lieferzeit: 5 Werktage

Pos.
651
BOSCH Auflage | Ersatzteile für 3D20 | 2610035688
Hersteller: BOSCH
Artikelnummer: EB-F0133D2045-2610035688
Netto: 14,36 € zzgl. MwSt.
zzgl. 6,90 € Versand (brutto)
einmalig pro Bestellung

Lieferzeit: 5 Werktage

Pos.
652
BOSCH USB Kabel | Ersatzteile für 3D20 | 2610035687
Hersteller: BOSCH
Artikelnummer: EB-F0133D2045-2610035687
nur Informationsartikel
Nie mehr lieferbar
keine Alternativen
Pos.
653
BOSCH SD-Karte | Ersatzteile für 3D20 | 2610035686
Hersteller: BOSCH
Artikelnummer: EB-F0133D2045-2610035686
Netto: 35,77 € zzgl. MwSt.
zzgl. 6,90 € Versand (brutto)
einmalig pro Bestellung

Lieferzeit: 5 Werktage

Pos.
801
BOSCH Gehäuse | Ersatzteile für 3D20 | 1619PA7806
Hersteller: BOSCH
Artikelnummer: EB-F0133D2045-1619PA7806
Netto: 86,83 € zzgl. MwSt.
zzgl. 6,90 € Versand (brutto)
einmalig pro Bestellung

Lieferzeit: 5 Werktage

Pos.
802
BOSCH Extrudierprofil | Ersatzteile für 3D20 | 1619PA8081
Hersteller: BOSCH
Artikelnummer: EB-F0133D2045-1619PA8081
Netto: 210,92 € zzgl. MwSt.
zzgl. 6,90 € Versand (brutto)
einmalig pro Bestellung

Lieferzeit: 5 Werktage

Pos.
803
BOSCH Heizelement | Ersatzteile für 3D20 | 1619PB0717
Hersteller: BOSCH
Artikelnummer: EB-F0133D2045-1619PB0717
Netto: 96,32 € zzgl. MwSt.
zzgl. 6,90 € Versand (brutto)
einmalig pro Bestellung

Lieferzeit: 5 Werktage

Pos.
811
BOSCH Befestigungswinkel | Ersatzteile für 3D20 | 1619PA7808
Hersteller: BOSCH
Artikelnummer: EB-F0133D2045-1619PA7808
Netto: 10,92 € zzgl. MwSt.
zzgl. 6,90 € Versand (brutto)
einmalig pro Bestellung

Lieferzeit: 5 Werktage

Pos.
822
BOSCH Frontplatte | Ersatzteile für 3D20 | 1619PA7809
Hersteller: BOSCH
Artikelnummer: EB-F0133D2045-1619PA7809
Netto: 26,88 € zzgl. MwSt.
zzgl. 6,90 € Versand (brutto)
einmalig pro Bestellung

Lieferzeit: 5 Werktage

Pos.
823
BOSCH Tür | Ersatzteile für 3D20 | 1619PA9069
Hersteller: BOSCH
Artikelnummer: EB-F0133D2045-1619PA9069
Netto: 39,11 € zzgl. MwSt.
zzgl. 6,90 € Versand (brutto)
einmalig pro Bestellung

Lieferzeit: 5 Werktage

Pos.
840
BOSCH Bedienfeld | Ersatzteile für 3D20 | 1619PA7810
Hersteller: BOSCH
Artikelnummer: EB-F0133D2045-1619PA7810
Netto: 96,32 € zzgl. MwSt.
zzgl. 6,90 € Versand (brutto)
einmalig pro Bestellung

Lieferzeit: 5 Werktage

Pos.
845
BOSCH Verkleidung | Ersatzteile für 3D20 | 1619PA9740
Hersteller: BOSCH
Artikelnummer: EB-F0133D2045-1619PA9740
Netto: 39,11 € zzgl. MwSt.
zzgl. 6,90 € Versand (brutto)
einmalig pro Bestellung

Lieferzeit: 5 Werktage

Pos.
855
BOSCH Kühlblech | Ersatzteile für 3D20 | 1619PB0071
Hersteller: BOSCH
Artikelnummer: EB-F0133D2045-1619PB0071
Netto: 42,86 € zzgl. MwSt.
zzgl. 6,90 € Versand (brutto)
einmalig pro Bestellung

Lieferzeit: 5 Werktage

Pos.
875
BOSCH Schrittmotor | Ersatzteile für 3D20 | 1619PA7812
Hersteller: BOSCH
Artikelnummer: EB-F0133D2045-1619PA7812
Netto: 47,09 € zzgl. MwSt.
zzgl. 6,90 € Versand (brutto)
einmalig pro Bestellung

Lieferzeit: 5 Werktage

Pos.
880
BOSCH Befestigungswinkel | Ersatzteile für 3D20 | 1619PA7807
Hersteller: BOSCH
Artikelnummer: EB-F0133D2045-1619PA7807
Netto: 60,55 € zzgl. MwSt.
zzgl. 6,90 € Versand (brutto)
einmalig pro Bestellung

Lieferzeit: 5 Werktage

Pos.
881
BOSCH Innensechskantschlüssel | Ersatzteile für 3D20 | 1619PA9142
Hersteller: BOSCH
Artikelnummer: EB-F0133D2045-1619PA9142
Netto: 4,53 € zzgl. MwSt.
zzgl. 6,90 € Versand (brutto)
einmalig pro Bestellung

Lieferzeit: 5 Werktage

Pos.
889
BOSCH Kabelbaum | Ersatzteile für 3D20 | 1619PA9702
Hersteller: BOSCH
Artikelnummer: EB-F0133D2045-1619PA9702
nur Informationsartikel
Nie mehr lieferbar
keine Alternativen

Angaben zur Produktsicherheit

Hersteller:
Robert Bosch Power Tools GmbH
Postfach 30 02 20
70442 Stuttgart

E-Mail:
kontakt@bosch.de