BOSCH Netzanschlussleitung CH 4,15m 2 x 1,0mm HO7 RN-F | Ersatzteile für 9775 H1 | 2610383569

Artikelnummer: EB-F0159775C1-2610383569

Position: 5

Marke: BOSCH


Bitte Kompatibilität prüfen!

Bitte prüfen Sie unbedingt die 10-stellige Typennummer Ihrer Maschine / Ihres Gerätes. Das Ersatzteil ist nur kompatibel, wenn Sie die Typennummer Ihrer Maschine in der unten stehenden Produktbeschreibung finden.

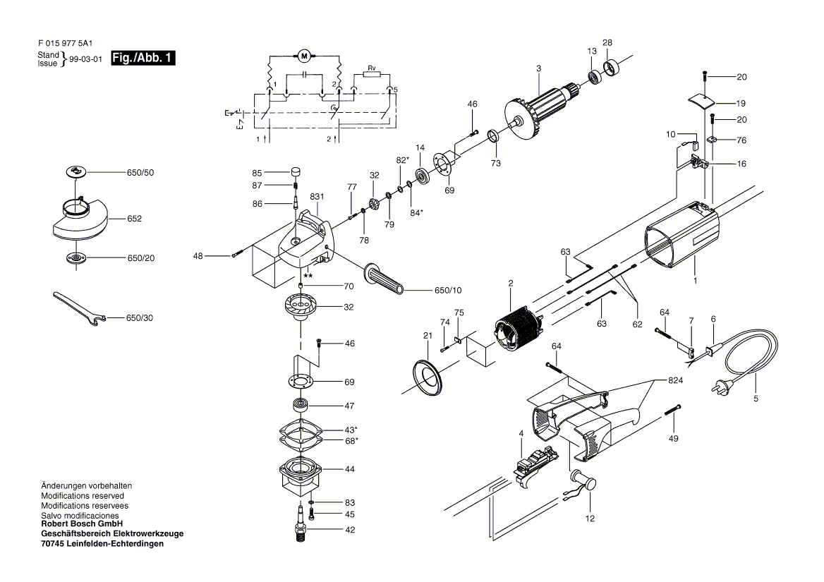
Bitte prüfen Sie ebenfalls detailliert die Explosionszeichnung mit Ihrem Artikelwunsch und der jeweiligen Pos-Nummer.

Alle Elemente, welche vom schwarzen Strich der Pos-Nummer ausgehend berührt / erfasst werden, gehören zu dieser Pos-Nummer und somit zu diesem Artikel. Jede Pos-Nummer ist ein eigenständiger Artikel, welchen Sie in der Auflistung finden.

Sie erhalten stets die aktuellste, neueste Produktversion zu der gewählten Pos-Nummer seitens des Herstellers. Es kann daher je nach Gerätealter vorkommen, dass Sie ggf. weitere, zugehörige Elemente, welche an diese Pos-Nummer grenzen, ebenfalls mittauschen müssen.

Nähere Informationen finden Sie unter dem Link
Hinweise zu Ihrer BOSCH Ersatzteilsuche

Preisübersicht

Einzelpreis: 14,08 €* (Brutto: 16,75 €)
Gesamtpreis: 14,08 €* 
Position:

Lieferzeit: 5 Werktage


Beschreibung

  • Netzanschlussleitung CH 4,15m 2 x 1,0mm HO7 RN-F
  • Original Bosch Zubehör / BOSCH Ersatzteil (2610383569)
  • im Gerät verbaut: 1
Dieses BOSCH Ersatzteil ist mit folgendem Gerät und Modell kompatibel:
  • BOSCH Gerätename: 9775 H1
  • BOSCH Explosionszeichnung: Position 5
  • BOSCH Typennummer: F0159775C1
  • BOSCH Typennummer alternative Schreibweisen: F 015 977 5C1, F015 977 5C1, F.015.977.5C1, F-015-977-5C1
    Bitte prüfen Sie diese Typennummer auf Ihrem Gerät um die Kompatibilität des BOSCH Ersatzteils zu gewährleisten.
Weitere BOSCH Ersatzteile des Gerätes 9775 H1 (Hw-Winkelschleifer) mit der Typennummer F0159775C1 finden Sie in der nachfolgenden Darstellung und im Dropdown zu Ihrer Auswahl:

Pos.
1
BOSCH Deckel | Ersatzteile für 9775 H1 | 2610386749
Hersteller: BOSCH
Artikelnummer: EB-F0159775C1-2610386749
nur Informationsartikel
Nie mehr lieferbar
keine Alternativen
Pos.
650/10
BOSCH Handgriff | Ersatzteile für 9775 H1 | 2610386784
Hersteller: BOSCH
Artikelnummer: EB-F0159775C1-2610386784
nur Informationsartikel
Nie mehr lieferbar
keine Alternativen
Pos.
650/20
BOSCH Mutter M 14 | Ersatzteile für 9775 H1 | 2610383745
Hersteller: BOSCH
Artikelnummer: EB-F0159775C1-2610383745
nur Informationsartikel
Nie mehr lieferbar
keine Alternativen
Pos.
650/30
BOSCH Schlüssel | Ersatzteile für 9775 H1 | 2610367728
Hersteller: BOSCH
Artikelnummer: EB-F0159775C1-2610367728
nur Informationsartikel
Nie mehr lieferbar
keine Alternativen
Pos.
650/50
BOSCH Flansch | Ersatzteile für 9775 H1 | 2610386782
Hersteller: BOSCH
Artikelnummer: EB-F0159775C1-2610386782
nur Informationsartikel
Nie mehr lieferbar
keine Alternativen
Pos.
2
BOSCH Polschuh 230-240V | Ersatzteile für 9775 H1 | 2610386750
Hersteller: BOSCH
Artikelnummer: EB-F0159775C1-2610386750
nur Informationsartikel
Nie mehr lieferbar
keine Alternativen
Pos.
3
BOSCH Anker 230-240V | Ersatzteile für 9775 H1 | 2610386753
Hersteller: BOSCH
Artikelnummer: EB-F0159775C1-2610386753
nur Informationsartikel
Nie mehr lieferbar
keine Alternativen
Pos.
4
BOSCH Schalter ROT | Ersatzteile für 9775 H1 | 2610391325
Hersteller: BOSCH
Artikelnummer: EB-F0159775C1-2610391325
nur Informationsartikel
Nie mehr lieferbar
keine Alternativen
Pos.
5
BOSCH Netzanschlussleitung CH 4,15m 2 x 1,0mm HO7 RN-F | Ersatzteile für 9775 H1 | 2610383569
Hersteller: BOSCH
Artikelnummer: EB-F0159775C1-2610383569
Netto: 14,08 € zzgl. MwSt.
zzgl. 6,90 € Versand (brutto)
einmalig pro Bestellung

Lieferzeit: 5 Werktage

Pos.
6
BOSCH Tülle | Ersatzteile für 9775 H1 | 2610386779
Hersteller: BOSCH
Artikelnummer: EB-F0159775C1-2610386779
nur Informationsartikel
Nie mehr lieferbar
keine Alternativen
Pos.
7
BOSCH Kabelbinder | Ersatzteile für 9775 H1 | 2610386787
Hersteller: BOSCH
Artikelnummer: EB-F0159775C1-2610386787
nur Informationsartikel
Nie mehr lieferbar
keine Alternativen
Pos.
10
BOSCH Kohlebürstensatz | Ersatzteile für 9775 H1 | 2610387232
Hersteller: BOSCH
Artikelnummer: EB-F0159775C1-2610387232
nur Informationsartikel
Nie mehr lieferbar
keine Alternativen
Pos.
12
BOSCH Draht | Ersatzteile für 9775 H1 | 2610386761
Hersteller: BOSCH
Artikelnummer: EB-F0159775C1-2610386761
nur Informationsartikel
Nie mehr lieferbar
keine Alternativen
Pos.
13
BOSCH Kugellager | Ersatzteile für 9775 H1 | 2610370702
Hersteller: BOSCH
Artikelnummer: EB-F0159775C1-2610370702
nur Informationsartikel
Nie mehr lieferbar
keine Alternativen
Pos.
14
BOSCH Kugellager | Ersatzteile für 9775 H1 | 2610386777
Hersteller: BOSCH
Artikelnummer: EB-F0159775C1-2610386777
nur Informationsartikel
Nie mehr lieferbar
keine Alternativen
Pos.
16
BOSCH Kohlebürstenhalter | Ersatzteile für 9775 H1 | 2610386763
Hersteller: BOSCH
Artikelnummer: EB-F0159775C1-2610386763
nur Informationsartikel
Nie mehr lieferbar
keine Alternativen
Pos.
19
BOSCH Deckel | Ersatzteile für 9775 H1 | 2610386767
Hersteller: BOSCH
Artikelnummer: EB-F0159775C1-2610386767
nur Informationsartikel
Nie mehr lieferbar
keine Alternativen
Pos.
20
BOSCH Schraube | Ersatzteile für 9775 H1 | 2610386786
Hersteller: BOSCH
Artikelnummer: EB-F0159775C1-2610386786
nur Informationsartikel
Nie mehr lieferbar
keine Alternativen
Pos.
21
BOSCH Luftleitblech | Ersatzteile für 9775 H1 | 2610386752
Hersteller: BOSCH
Artikelnummer: EB-F0159775C1-2610386752
nur Informationsartikel
Nie mehr lieferbar
keine Alternativen
Pos.
28
BOSCH Buchse | Ersatzteile für 9775 H1 | 2610386769
Hersteller: BOSCH
Artikelnummer: EB-F0159775C1-2610386769
nur Informationsartikel
Nie mehr lieferbar
keine Alternativen
Pos.
32
BOSCH Getriebe | Ersatzteile für 9775 H1 | 2610386745
Hersteller: BOSCH
Artikelnummer: EB-F0159775C1-2610386745
nur Informationsartikel
Nie mehr lieferbar
keine Alternativen
Pos.
42
BOSCH Spindel M 14 | Ersatzteile für 9775 H1 | 2610386744
Hersteller: BOSCH
Artikelnummer: EB-F0159775C1-2610386744
nur Informationsartikel
Nie mehr lieferbar
keine Alternativen
Pos.
43
BOSCH Dichtscheibe | Ersatzteile für 9775 H1 | 2610388750
Hersteller: BOSCH
Artikelnummer: EB-F0159775C1-2610388750
nur Informationsartikel
Nie mehr lieferbar
keine Alternativen
Pos.
44
BOSCH Lagerflansch | Ersatzteile für 9775 H1 | 2610388752
Hersteller: BOSCH
Artikelnummer: EB-F0159775C1-2610388752
nur Informationsartikel
Nie mehr lieferbar
keine Alternativen
Pos.
45
BOSCH Zylinderschraube | Ersatzteile für 9775 H1 | 2610388753
Hersteller: BOSCH
Artikelnummer: EB-F0159775C1-2610388753
nur Informationsartikel
Nie mehr lieferbar
keine Alternativen
Pos.
46
BOSCH Schraube | Ersatzteile für 9775 H1 | 2610386804
Hersteller: BOSCH
Artikelnummer: EB-F0159775C1-2610386804
nur Informationsartikel
Nie mehr lieferbar
keine Alternativen
Pos.
47
BOSCH Kugellager | Ersatzteile für 9775 H1 | 2610063938
Hersteller: BOSCH
Artikelnummer: EB-F0159775C1-2610063938
nur Informationsartikel
Nie mehr lieferbar
keine Alternativen
Pos.
48
BOSCH Schraube | Ersatzteile für 9775 H1 | 2610386785
Hersteller: BOSCH
Artikelnummer: EB-F0159775C1-2610386785
nur Informationsartikel
Nie mehr lieferbar
keine Alternativen
Pos.
49
BOSCH Schraube | Ersatzteile für 9775 H1 | 2610386788
Hersteller: BOSCH
Artikelnummer: EB-F0159775C1-2610386788
nur Informationsartikel
Nie mehr lieferbar
keine Alternativen
Pos.
62
BOSCH Draht | Ersatzteile für 9775 H1 | 2610386780
Hersteller: BOSCH
Artikelnummer: EB-F0159775C1-2610386780
Netto: 4,61 € zzgl. MwSt.
zzgl. 6,90 € Versand (brutto)
einmalig pro Bestellung

Lieferzeit: 5 Werktage

Pos.
63
BOSCH Draht | Ersatzteile für 9775 H1 | 2610386781
Hersteller: BOSCH
Artikelnummer: EB-F0159775C1-2610386781
nur Informationsartikel
Nie mehr lieferbar
keine Alternativen
Pos.
64
BOSCH Schraube | Ersatzteile für 9775 H1 | 2610367838
Hersteller: BOSCH
Artikelnummer: EB-F0159775C1-2610367838
nur Informationsartikel
Nie mehr lieferbar
keine Alternativen
Pos.
68
BOSCH Dichtscheibe | Ersatzteile für 9775 H1 | 2610388751
Hersteller: BOSCH
Artikelnummer: EB-F0159775C1-2610388751
nur Informationsartikel
Nie mehr lieferbar
keine Alternativen
Pos.
69
BOSCH Halter | Ersatzteile für 9775 H1 | 2610386762
Hersteller: BOSCH
Artikelnummer: EB-F0159775C1-2610386762
nur Informationsartikel
Nie mehr lieferbar
keine Alternativen
Pos.
70
BOSCH Gleitlager | Ersatzteile für 9775 H1 | 2610386778
Hersteller: BOSCH
Artikelnummer: EB-F0159775C1-2610386778
nur Informationsartikel
Nie mehr lieferbar
keine Alternativen
Pos.
73
BOSCH Buchse | Ersatzteile für 9775 H1 | 2610386758
Hersteller: BOSCH
Artikelnummer: EB-F0159775C1-2610386758
nur Informationsartikel
Nie mehr lieferbar
keine Alternativen
Pos.
74
BOSCH Schraube | Ersatzteile für 9775 H1 | 2610386774
Hersteller: BOSCH
Artikelnummer: EB-F0159775C1-2610386774
Netto: 3,95 € zzgl. MwSt.
zzgl. 6,90 € Versand (brutto)
einmalig pro Bestellung

Lieferzeit: 5 Werktage

Pos.
75
BOSCH Platte | Ersatzteile für 9775 H1 | 2610386768
Hersteller: BOSCH
Artikelnummer: EB-F0159775C1-2610386768
Netto: 3,95 € zzgl. MwSt.
zzgl. 6,90 € Versand (brutto)
einmalig pro Bestellung

Lieferzeit: 5 Werktage

Pos.
76
BOSCH Halter | Ersatzteile für 9775 H1 | 2610386766
Hersteller: BOSCH
Artikelnummer: EB-F0159775C1-2610386766
nur Informationsartikel
Nie mehr lieferbar
keine Alternativen
Pos.
77
BOSCH Schraube | Ersatzteile für 9775 H1 | 2610386757
Hersteller: BOSCH
Artikelnummer: EB-F0159775C1-2610386757
nur Informationsartikel
Nie mehr lieferbar
keine Alternativen
Pos.
78
BOSCH Scheibe | Ersatzteile für 9775 H1 | 2610386756
Hersteller: BOSCH
Artikelnummer: EB-F0159775C1-2610386756
nur Informationsartikel
Nie mehr lieferbar
keine Alternativen
Pos.
79
BOSCH Ring | Ersatzteile für 9775 H1 | 2610386755
Hersteller: BOSCH
Artikelnummer: EB-F0159775C1-2610386755
nur Informationsartikel
Nie mehr lieferbar
keine Alternativen
Pos.
82
BOSCH Scheibe 0,1 MM DICK | Ersatzteile für 9775 H1 | 2610386760
Hersteller: BOSCH
Artikelnummer: EB-F0159775C1-2610386760
nur Informationsartikel
Nie mehr lieferbar
keine Alternativen
Pos.
83
BOSCH Ausgleichscheibe | Ersatzteile für 9775 H1 | 2610388754
Hersteller: BOSCH
Artikelnummer: EB-F0159775C1-2610388754
nur Informationsartikel
Nie mehr lieferbar
keine Alternativen
Pos.
84
BOSCH Scheibe 0,3 MM DICK | Ersatzteile für 9775 H1 | 2610386759
Hersteller: BOSCH
Artikelnummer: EB-F0159775C1-2610386759
nur Informationsartikel
Nie mehr lieferbar
keine Alternativen
Pos.
85
BOSCH Knopf ROT | Ersatzteile für 9775 H1 | 2610391302
Hersteller: BOSCH
Artikelnummer: EB-F0159775C1-2610391302
nur Informationsartikel
Nie mehr lieferbar
keine Alternativen
Pos.
86
BOSCH Sicherung | Ersatzteile für 9775 H1 | 2610386770
Hersteller: BOSCH
Artikelnummer: EB-F0159775C1-2610386770
nur Informationsartikel
Nie mehr lieferbar
keine Alternativen
Pos.
87
BOSCH Feder | Ersatzteile für 9775 H1 | 2610386772
Hersteller: BOSCH
Artikelnummer: EB-F0159775C1-2610386772
nur Informationsartikel
Nie mehr lieferbar
keine Alternativen
Pos.
652
BOSCH Schutzkappe | Ersatzteile für 9775 H1 | 2610386783
Hersteller: BOSCH
Artikelnummer: EB-F0159775C1-2610386783
nur Informationsartikel
Nie mehr lieferbar
keine Alternativen
Pos.
824
BOSCH Handgriff-Set | Ersatzteile für 9775 H1 | 2610386771
Hersteller: BOSCH
Artikelnummer: EB-F0159775C1-2610386771
nur Informationsartikel
Nie mehr lieferbar
keine Alternativen
Pos.
831
BOSCH Getriebegehäuse | Ersatzteile für 9775 H1 | 2610388749
Hersteller: BOSCH
Artikelnummer: EB-F0159775C1-2610388749
nur Informationsartikel
Nie mehr lieferbar
keine Alternativen

Angaben zur Produktsicherheit

Hersteller:
Robert Bosch Power Tools GmbH
Postfach 30 02 20
70442 Stuttgart

E-Mail:
kontakt@bosch.de