BOSCH Sicherungsbügel DIN 471-15x1-FSt | Ersatzteile für E 23 SB | 2916650006

Artikelnummer: EB-0603146103-2916650006

Position: 39

Marke: BOSCH


Bitte Kompatibilität prüfen!

Bitte prüfen Sie unbedingt die 10-stellige Typennummer Ihrer Maschine / Ihres Gerätes. Das Ersatzteil ist nur kompatibel, wenn Sie die Typennummer Ihrer Maschine in der unten stehenden Produktbeschreibung finden.

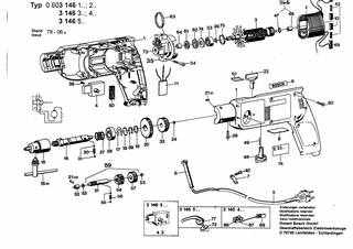
Bitte prüfen Sie ebenfalls detailliert die Explosionszeichnung mit Ihrem Artikelwunsch und der jeweiligen Pos-Nummer.

Alle Elemente, welche vom schwarzen Strich der Pos-Nummer ausgehend berührt / erfasst werden, gehören zu dieser Pos-Nummer und somit zu diesem Artikel. Jede Pos-Nummer ist ein eigenständiger Artikel, welchen Sie in der Auflistung finden.

Sie erhalten stets die aktuellste, neueste Produktversion zu der gewählten Pos-Nummer seitens des Herstellers. Es kann daher je nach Gerätealter vorkommen, dass Sie ggf. weitere, zugehörige Elemente, welche an diese Pos-Nummer grenzen, ebenfalls mittauschen müssen.

Nähere Informationen finden Sie unter dem Link
Hinweise zu Ihrer BOSCH Ersatzteilsuche

Preisübersicht

Einzelpreis: 3,94 €* (Brutto: 4,69 €)
Gesamtpreis: 3,94 €* 
Position:

Lieferzeit: 5 Werktage


Beschreibung

  • Sicherungsbügel DIN 471-15x1-FSt
  • Original Bosch Zubehör / BOSCH Ersatzteil (2916650006)
  • im Gerät verbaut: 1
Dieses BOSCH Ersatzteil ist mit folgendem Gerät und Modell kompatibel:
  • BOSCH Gerätename: E 23 SB
  • BOSCH Explosionszeichnung: Position 39
  • BOSCH Typennummer: 0603146103
  • BOSCH Typennummer alternative Schreibweisen: 0 603 146 103, 0603 146 103, 0.603.146.103, 0-603-146-103
    Bitte prüfen Sie diese Typennummer auf Ihrem Gerät um die Kompatibilität des BOSCH Ersatzteils zu gewährleisten.
Weitere BOSCH Ersatzteile des Gerätes E 23 SB (Schlagbohrmaschine) mit der Typennummer 0603146103 finden Sie in der nachfolgenden Darstellung und im Dropdown zu Ihrer Auswahl:

Pos.
1
BOSCH Gehäuseschale | Ersatzteile für E 23 SB | 2605104936
Hersteller: BOSCH
Artikelnummer: EB-0603146103-2605104936
nur Informationsartikel
Nie mehr lieferbar
keine Alternativen
Pos.
1
BOSCH Gehäuseschale BLAU | Ersatzteile für E 23 SB | 2605104958
Hersteller: BOSCH
Artikelnummer: EB-0603146103-2605104958
nur Informationsartikel
Nie mehr lieferbar
keine Alternativen
Pos.
15/01
BOSCH Bohrfutterschlüssel SG2 | Ersatzteile für E 23 SB | 2607950007
Hersteller: BOSCH
Artikelnummer: EB-0603146103-2607950007
Netto: 7,26 € zzgl. MwSt.
zzgl. 6,90 € Versand (brutto)
einmalig pro Bestellung

Lieferzeit: 5 Werktage

Pos.
2
BOSCH Polschuh 220-240V | Ersatzteile für E 23 SB | 2604220347
Hersteller: BOSCH
Artikelnummer: EB-0603146103-2604220347
nur Informationsartikel
Nie mehr lieferbar
keine Alternativen
Pos.
3
BOSCH Anker Mit Lüfter 220-240V | Ersatzteile für E 23 SB | 2604010493
Hersteller: BOSCH
Artikelnummer: EB-0603146103-2604010493
nur Informationsartikel
Nie mehr lieferbar
keine Alternativen
Pos.
4
BOSCH Ein/Aus-Schalter | Ersatzteile für E 23 SB | 1609202464
Hersteller: BOSCH
Artikelnummer: EB-0603146103-2607200060
nur Informationsartikel
Nie mehr lieferbar
keine Alternativen
Pos.
5
BOSCH Netzanschlussleitung EU 230V 4,15m 2 x 1,0mm H05 RN-F | Ersatzteile für E 23 SB | 1607000386
Hersteller: BOSCH
Artikelnummer: EB-0603146103-1607000386
Netto: 16,70 € zzgl. MwSt.
zzgl. 6,90 € Versand (brutto)
einmalig pro Bestellung

Lieferzeit: 5 Werktage

Pos.
6
BOSCH Tülle Ø6,4-Ø7,5x75 MM | Ersatzteile für E 23 SB | 1600703016
Hersteller: BOSCH
Artikelnummer: EB-0603146103-1600703016
Netto: 3,60 € zzgl. MwSt.
zzgl. 6,90 € Versand (brutto)
einmalig pro Bestellung

Lieferzeit: 5 Werktage

Pos.
6
BOSCH Tülle Ø9,5 MM | Ersatzteile für E 23 SB | 2600703006
Hersteller: BOSCH
Artikelnummer: EB-0603146103-2600703006
nur Informationsartikel
Nie mehr lieferbar
keine Alternativen
Pos.
7
BOSCH Befestigungsschelle | Ersatzteile für E 23 SB | 1601302014
Hersteller: BOSCH
Artikelnummer: EB-0603146103-1601302014
Netto: 4,56 € zzgl. MwSt.
zzgl. 6,90 € Versand (brutto)
einmalig pro Bestellung

Lieferzeit: 5 Werktage

Pos.
8
BOSCH Typschild | Ersatzteile für E 23 SB | 160111A3H3
Hersteller: BOSCH
Artikelnummer: EB-0603146103-160111A3H3
Netto: 4,56 € zzgl. MwSt.
zzgl. 6,90 € Versand (brutto)
einmalig pro Bestellung

Lieferzeit: 5 Werktage

Pos.
9
BOSCH Firmenschild | Ersatzteile für E 23 SB | 1601110013
Hersteller: BOSCH
Artikelnummer: EB-0603146103-1601110013
nur Informationsartikel
Nie mehr lieferbar
keine Alternativen
Pos.
10
BOSCH Kohlebürste | Ersatzteile für E 23 SB | 1604321900
Hersteller: BOSCH
Artikelnummer: EB-0603146103-1604321900
nur Informationsartikel
Nie mehr lieferbar
keine Alternativen
Pos.
11
BOSCH Entstörkondensator | Ersatzteile für E 23 SB | 2607329069
Hersteller: BOSCH
Artikelnummer: EB-0603146103-2607329069
nur Informationsartikel
Nie mehr lieferbar
keine Alternativen
Pos.
15
BOSCH Zahnkranzbohrfutter Ø0,8-10 MM, 1/2 Zoll | Ersatzteile für E 23 SB | 1608571005
Hersteller: BOSCH
Artikelnummer: EB-0603146103-1608571005
nur Informationsartikel
Nie mehr lieferbar
keine Alternativen
Pos.
16
BOSCH Bohrspindel | Ersatzteile für E 23 SB | 2603122024
Hersteller: BOSCH
Artikelnummer: EB-0603146103-2603122024
nur Informationsartikel
Nie mehr lieferbar
keine Alternativen
Pos.
17
BOSCH Sicherungsscheibe 0,3 MM | Ersatzteile für E 23 SB | 2600118006
Hersteller: BOSCH
Artikelnummer: EB-0603146103-2600118006
nur Informationsartikel
Nie mehr lieferbar
keine Alternativen
Pos.
17
BOSCH Sicherungsscheibe 0,6 MM | Ersatzteile für E 23 SB | 2600118001
Hersteller: BOSCH
Artikelnummer: EB-0603146103-2600118001
Netto: 3,60 € zzgl. MwSt.
zzgl. 6,90 € Versand (brutto)
einmalig pro Bestellung

Lieferzeit: 5 Werktage

Pos.
17
BOSCH Sicherungsscheibe 0,8 MM | Ersatzteile für E 23 SB | 2600118002
Hersteller: BOSCH
Artikelnummer: EB-0603146103-2600118002
Netto: 3,94 € zzgl. MwSt.
zzgl. 6,90 € Versand (brutto)
einmalig pro Bestellung

Lieferzeit: 5 Werktage

Pos.
17
BOSCH Sicherungsscheibe 1,0 MM | Ersatzteile für E 23 SB | 2600118003
Hersteller: BOSCH
Artikelnummer: EB-0603146103-2600118003
nur Informationsartikel
Nie mehr lieferbar
keine Alternativen
Pos.
18
BOSCH O-Ring 15x2 MM | Ersatzteile für E 23 SB | 1900210012
Hersteller: BOSCH
Artikelnummer: EB-0603146103-1900210012
Netto: 3,60 € zzgl. MwSt.
zzgl. 6,90 € Versand (brutto)
einmalig pro Bestellung

Lieferzeit: 5 Werktage

Pos.
19
BOSCH Ausgleichscheibe 1,0 MM | Ersatzteile für E 23 SB | 2600101515
Hersteller: BOSCH
Artikelnummer: EB-0603146103-2600101515
Netto: 3,60 € zzgl. MwSt.
zzgl. 6,90 € Versand (brutto)
einmalig pro Bestellung

Lieferzeit: 5 Werktage

Pos.
20
BOSCH Stirnrad Z=48 | Ersatzteile für E 23 SB | 2606317014
Hersteller: BOSCH
Artikelnummer: EB-0603146103-2606317014
nur Informationsartikel
Nie mehr lieferbar
keine Alternativen
Pos.
22
BOSCH Schaltwelle | Ersatzteile für E 23 SB | 2603120004
Hersteller: BOSCH
Artikelnummer: EB-0603146103-2603120004
nur Informationsartikel
Nie mehr lieferbar
keine Alternativen
Pos.
24
BOSCH Kugel DIN 5401-5 G28 | Ersatzteile für E 23 SB | 1903230009
Hersteller: BOSCH
Artikelnummer: EB-0603146103-1903230009
Netto: 3,60 € zzgl. MwSt.
zzgl. 6,90 € Versand (brutto)
einmalig pro Bestellung

Lieferzeit: 5 Werktage

Pos.
27
BOSCH Druckfeder | Ersatzteile für E 23 SB | 2604617000
Hersteller: BOSCH
Artikelnummer: EB-0603146103-2604617000
Netto: 4,56 € zzgl. MwSt.
zzgl. 6,90 € Versand (brutto)
einmalig pro Bestellung

Lieferzeit: 5 Werktage

Pos.
28
BOSCH Rillenkugellager 6002-Z DIN 625 | Ersatzteile für E 23 SB | 1900905102
Hersteller: BOSCH
Artikelnummer: EB-0603146103-1900905102
nur Informationsartikel
Nie mehr lieferbar
keine Alternativen
Pos.
29
BOSCH Torx-Linsenschraube 3x18 | Ersatzteile für E 23 SB | 2603490018
Hersteller: BOSCH
Artikelnummer: EB-0603146103-2603490018
nur Informationsartikel
Nie mehr lieferbar
keine Alternativen
Pos.
30
BOSCH Druckfeder | Ersatzteile für E 23 SB | 2604610007
Hersteller: BOSCH
Artikelnummer: EB-0603146103-2604610007
nur Informationsartikel
Nie mehr lieferbar
keine Alternativen
Pos.
31
BOSCH Kugel DIN 5401-4 MM-III-ST | Ersatzteile für E 23 SB | 1903230007
Hersteller: BOSCH
Artikelnummer: EB-0603146103-1903230007
Netto: 3,94 € zzgl. MwSt.
zzgl. 6,90 € Versand (brutto)
einmalig pro Bestellung

Lieferzeit: 5 Werktage

Pos.
32
BOSCH Stirnrad Z=35 | Ersatzteile für E 23 SB | 2606317015
Hersteller: BOSCH
Artikelnummer: EB-0603146103-2606317015
nur Informationsartikel
Nie mehr lieferbar
keine Alternativen
Pos.
33
BOSCH Rillenkugellager Ø9 MM | Ersatzteile für E 23 SB | 2600905003
Hersteller: BOSCH
Artikelnummer: EB-0603146103-2600905003
nur Informationsartikel
Nie mehr lieferbar
keine Alternativen
Pos.
34
BOSCH Zylinderschraube | Ersatzteile für E 23 SB | 2603410031
Hersteller: BOSCH
Artikelnummer: EB-0603146103-2603410031
nur Informationsartikel
Nie mehr lieferbar
keine Alternativen
Pos.
35
BOSCH Lagerbrücke | Ersatzteile für E 23 SB | 2605807902
Hersteller: BOSCH
Artikelnummer: EB-0603146103-2605807902
nur Informationsartikel
Nie mehr lieferbar
keine Alternativen
Pos.
36
BOSCH Sicherungsring DIN 471 9x1MM | Ersatzteile für E 23 SB | 2916640006
Hersteller: BOSCH
Artikelnummer: EB-0603146103-2916640006
Netto: 3,94 € zzgl. MwSt.
zzgl. 6,90 € Versand (brutto)
einmalig pro Bestellung

Lieferzeit: 5 Werktage

Pos.
38
BOSCH Zylinderschraube M3x10 MM | Ersatzteile für E 23 SB | 2603410023
Hersteller: BOSCH
Artikelnummer: EB-0603146103-2603410023
nur Informationsartikel
Nie mehr lieferbar
keine Alternativen
Pos.
39
BOSCH Sicherungsbügel DIN 471-15x1-FSt | Ersatzteile für E 23 SB | 2916650006
Hersteller: BOSCH
Artikelnummer: EB-0603146103-2916650006
Netto: 3,94 € zzgl. MwSt.
zzgl. 6,90 € Versand (brutto)
einmalig pro Bestellung

Lieferzeit: 5 Werktage

Pos.
40
BOSCH Blechschraube DIN 7971-BZ3,9x9,5 | Ersatzteile für E 23 SB | 2910211017
Hersteller: BOSCH
Artikelnummer: EB-0603146103-2910211017
nur Informationsartikel
Nie mehr lieferbar
keine Alternativen
Pos.
43
BOSCH Druckfeder | Ersatzteile für E 23 SB | 2604610009
Hersteller: BOSCH
Artikelnummer: EB-0603146103-2604610009
nur Informationsartikel
Nie mehr lieferbar
keine Alternativen
Pos.
46
BOSCH Nadelhülse | Ersatzteile für E 23 SB | 1600910012
Hersteller: BOSCH
Artikelnummer: EB-0603146103-1600910012
nur Informationsartikel
Nie mehr lieferbar
keine Alternativen
Pos.
47
BOSCH O-Ring 8,0x2,5 MM | Ersatzteile für E 23 SB | 1610210014
Hersteller: BOSCH
Artikelnummer: EB-0603146103-1610210014
nur Informationsartikel
Nie mehr lieferbar
keine Alternativen
Pos.
48
BOSCH Drehknopf | Ersatzteile für E 23 SB | 2603120008
Hersteller: BOSCH
Artikelnummer: EB-0603146103-2603120008
nur Informationsartikel
Nie mehr lieferbar
keine Alternativen
Pos.
49
BOSCH Zylinderstift | Ersatzteile für E 23 SB | 2603101002
Hersteller: BOSCH
Artikelnummer: EB-0603146103-2603101002
nur Informationsartikel
Nie mehr lieferbar
keine Alternativen
Pos.
50
BOSCH Isolierstreifen 33x10x6 MM | Ersatzteile für E 23 SB | 1602381001
Hersteller: BOSCH
Artikelnummer: EB-0603146103-1602381001
nur Informationsartikel
Nie mehr lieferbar
keine Alternativen
Pos.
51
BOSCH Zahnwelle Z= 9 | Ersatzteile für E 23 SB | 2606309003
Hersteller: BOSCH
Artikelnummer: EB-0603146103-2606309003
nur Informationsartikel
Nie mehr lieferbar
keine Alternativen
Pos.
52
BOSCH Nadellager Ø6 MM | Ersatzteile für E 23 SB | 2600914010
Hersteller: BOSCH
Artikelnummer: EB-0603146103-2600914010
Netto: 4,80 € zzgl. MwSt.
zzgl. 6,90 € Versand (brutto)
einmalig pro Bestellung

Lieferzeit: 5 Werktage

Pos.
53
BOSCH Ausgleichscheibe 0,3 MM | Ersatzteile für E 23 SB | 2600100570
Hersteller: BOSCH
Artikelnummer: EB-0603146103-2600100570
Netto: 3,94 € zzgl. MwSt.
zzgl. 6,90 € Versand (brutto)
einmalig pro Bestellung

Lieferzeit: 5 Werktage

Pos.
54
BOSCH Zahnrad Z=22 | Ersatzteile für E 23 SB | 2606320009
Hersteller: BOSCH
Artikelnummer: EB-0603146103-2606320009
nur Informationsartikel
Nie mehr lieferbar
keine Alternativen
Pos.
55
BOSCH Kugel DIN 5401-3,5 MM-III-ST | Ersatzteile für E 23 SB | 1903230006
Hersteller: BOSCH
Artikelnummer: EB-0603146103-1903230006
Netto: 4,36 € zzgl. MwSt.
zzgl. 6,90 € Versand (brutto)
einmalig pro Bestellung

Lieferzeit: 5 Werktage

Pos.
56
BOSCH Druckfeder | Ersatzteile für E 23 SB | 2604611002
Hersteller: BOSCH
Artikelnummer: EB-0603146103-2604611002
nur Informationsartikel
Nie mehr lieferbar
keine Alternativen
Pos.
57
BOSCH Stirnrad Z=21 | Ersatzteile für E 23 SB | 2606320006
Hersteller: BOSCH
Artikelnummer: EB-0603146103-2606320006
nur Informationsartikel
Nie mehr lieferbar
keine Alternativen
Pos.
59
BOSCH Zahnwelle Z= 21/22/9 | Ersatzteile für E 23 SB | 2606309900
Hersteller: BOSCH
Artikelnummer: EB-0603146103-2606309900
nur Informationsartikel
Nie mehr lieferbar
keine Alternativen
Pos.
60
BOSCH Blechschraube DIN 7971-ST3,9x16-F | Ersatzteile für E 23 SB | 2910211019
Hersteller: BOSCH
Artikelnummer: EB-0603146103-2910211019
Netto: 3,60 € zzgl. MwSt.
zzgl. 6,90 € Versand (brutto)
einmalig pro Bestellung

Lieferzeit: 5 Werktage

Pos.
61
BOSCH Filzring | Ersatzteile für E 23 SB | 2600108002
Hersteller: BOSCH
Artikelnummer: EB-0603146103-2600108002
Netto: 4,36 € zzgl. MwSt.
zzgl. 6,90 € Versand (brutto)
einmalig pro Bestellung

Lieferzeit: 5 Werktage

Pos.
62
BOSCH Tellerscheibe | Ersatzteile für E 23 SB | 2600500002
Hersteller: BOSCH
Artikelnummer: EB-0603146103-2600500002
Netto: 3,94 € zzgl. MwSt.
zzgl. 6,90 € Versand (brutto)
einmalig pro Bestellung

Lieferzeit: 5 Werktage

Pos.
63
BOSCH O-Ring 35,0x2,0 MM | Ersatzteile für E 23 SB | 2600210026
Hersteller: BOSCH
Artikelnummer: EB-0603146103-2600210026
nur Informationsartikel
Nie mehr lieferbar
keine Alternativen
Pos.
64
BOSCH Steckhülse | Ersatzteile für E 23 SB | 2600400008
Hersteller: BOSCH
Artikelnummer: EB-0603146103-2600400008
Netto: 3,94 € zzgl. MwSt.
zzgl. 6,90 € Versand (brutto)
einmalig pro Bestellung

Lieferzeit: 5 Werktage

Pos.
67
BOSCH Si-Diode | Ersatzteile für E 23 SB | 2607320008
Hersteller: BOSCH
Artikelnummer: EB-0603146103-2607320008
nur Informationsartikel
Nie mehr lieferbar
keine Alternativen
Pos.
68
BOSCH Ein/Aus-Schalter | Ersatzteile für E 23 SB | 2607200904
Hersteller: BOSCH
Artikelnummer: EB-0603146103-2607200904
nur Informationsartikel
Nie mehr lieferbar
keine Alternativen
Pos.
69
BOSCH Bürstenhalter | Ersatzteile für E 23 SB | 2604337000
Hersteller: BOSCH
Artikelnummer: EB-0603146103-2604337000
nur Informationsartikel
Nie mehr lieferbar
keine Alternativen
Pos.
72
BOSCH Dichtscheibe | Ersatzteile für E 23 SB | 1600109006
Hersteller: BOSCH
Artikelnummer: EB-0603146103-1600109006
nur Informationsartikel
Nie mehr lieferbar
keine Alternativen
Pos.
74
BOSCH Ausgleichscheibe | Ersatzteile für E 23 SB | 2600150005
Hersteller: BOSCH
Artikelnummer: EB-0603146103-2600150005
Netto: 3,94 € zzgl. MwSt.
zzgl. 6,90 € Versand (brutto)
einmalig pro Bestellung

Lieferzeit: 5 Werktage

Pos.
75
BOSCH Sicherungsring DIN 472-24x1,2 MM | Ersatzteile für E 23 SB | 2916660008
Hersteller: BOSCH
Artikelnummer: EB-0603146103-2916660008
Netto: 4,36 € zzgl. MwSt.
zzgl. 6,90 € Versand (brutto)
einmalig pro Bestellung

Lieferzeit: 5 Werktage

Pos.
77
BOSCH Thermoschalter | Ersatzteile für E 23 SB | 1607202900
Hersteller: BOSCH
Artikelnummer: EB-0603146103-1607202900
nur Informationsartikel
Nie mehr lieferbar
keine Alternativen

Angaben zur Produktsicherheit

Hersteller:
Robert Bosch Power Tools GmbH
Postfach 30 02 20
70442 Stuttgart

E-Mail:
kontakt@bosch.de