BOSCH Schutzkappe | Ersatzteile für GSS 16 A | 2605510033

Artikelnummer: EB-0601289037-2605510033

Position: 29

Marke: BOSCH


Bitte Kompatibilität prüfen!

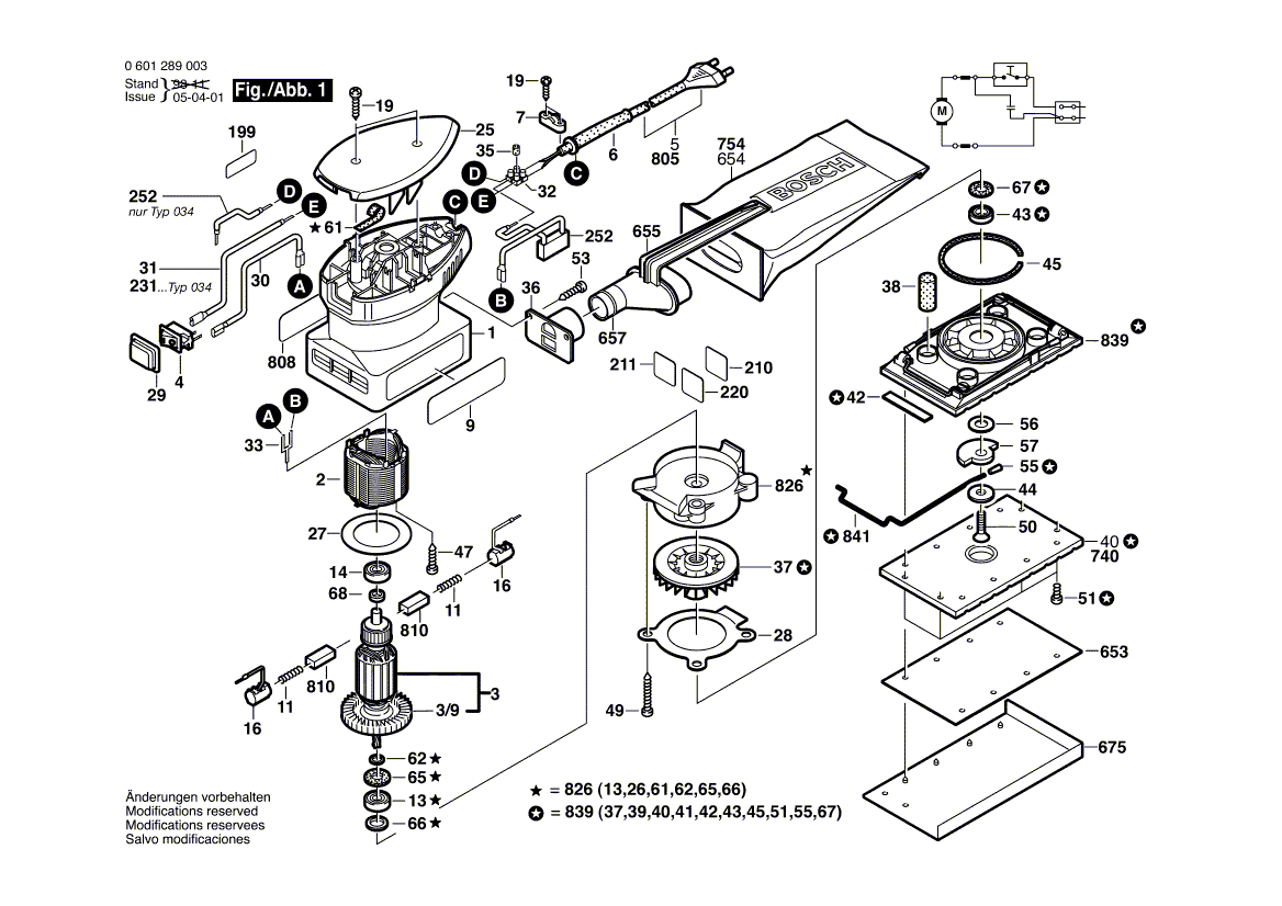
Bitte prüfen Sie unbedingt die 10-stellige Typennummer Ihrer Maschine / Ihres Gerätes. Das Ersatzteil ist nur kompatibel, wenn Sie die Typennummer Ihrer Maschine in der unten stehenden Produktbeschreibung finden.

Bitte prüfen Sie ebenfalls detailliert die Explosionszeichnung mit Ihrem Artikelwunsch und der jeweiligen Pos-Nummer.

Alle Elemente, welche vom schwarzen Strich der Pos-Nummer ausgehend berührt / erfasst werden, gehören zu dieser Pos-Nummer und somit zu diesem Artikel. Jede Pos-Nummer ist ein eigenständiger Artikel, welchen Sie in der Auflistung finden.

Sie erhalten stets die aktuellste, neueste Produktversion zu der gewählten Pos-Nummer seitens des Herstellers. Es kann daher je nach Gerätealter vorkommen, dass Sie ggf. weitere, zugehörige Elemente, welche an diese Pos-Nummer grenzen, ebenfalls mittauschen müssen.

Nähere Informationen finden Sie unter dem Link
Hinweise zu Ihrer BOSCH Ersatzteilsuche

Preisübersicht

Einzelpreis: 3,60 €* (Brutto: 4,28 €)
Gesamtpreis: 3,60 €* 
Position:

Lieferzeit: 5 Werktage


Beschreibung

  • Schutzkappe
  • Original Bosch Zubehör / BOSCH Ersatzteil (2605510033)
  • im Gerät verbaut: 1
Dieses BOSCH Ersatzteil ist mit folgendem Gerät und Modell kompatibel:
  • BOSCH Gerätename: GSS 16 A
  • BOSCH Explosionszeichnung: Position 29
  • BOSCH Typennummer: 0601289037
  • BOSCH Typennummer alternative Schreibweisen: 0 601 289 037, 0601 289 037, 0.601.289.037, 0-601-289-037
    Bitte prüfen Sie diese Typennummer auf Ihrem Gerät um die Kompatibilität des BOSCH Ersatzteils zu gewährleisten.
Weitere BOSCH Ersatzteile des Gerätes GSS 16 A (Schwingschleifer) mit der Typennummer 0601289037 finden Sie in der nachfolgenden Darstellung und im Dropdown zu Ihrer Auswahl:

Pos.
1
BOSCH Motorgehäuse BLAU | Ersatzteile für GSS 16 A | 2605108047
Hersteller: BOSCH
Artikelnummer: EB-0601289037-2605108047
nur Informationsartikel
Nie mehr lieferbar
keine Alternativen
Pos.
3/9
BOSCH Lüfter | Ersatzteile für GSS 16 A | 2606610055
Hersteller: BOSCH
Artikelnummer: EB-0601289037-2606610055
Netto: 5,65 € zzgl. MwSt.
zzgl. 6,90 € Versand (brutto)
einmalig pro Bestellung

Lieferzeit: 5 Werktage

Pos.
2
BOSCH Polschuh 230-240V | Ersatzteile für GSS 16 A | 2604220507
Hersteller: BOSCH
Artikelnummer: EB-0601289037-2604220507
nur Informationsartikel
Nie mehr lieferbar
keine Alternativen
Pos.
3
BOSCH Anker 230-240V | Ersatzteile für GSS 16 A | 2604010719
Hersteller: BOSCH
Artikelnummer: EB-0601289037-2604010719
nur Informationsartikel
Nie mehr lieferbar
keine Alternativen
Pos.
4
BOSCH Ein/Aus-Schalter | Ersatzteile für GSS 16 A | 2607200215
Hersteller: BOSCH
Artikelnummer: EB-0601289037-2607200215
nur Informationsartikel
Nie mehr lieferbar
keine Alternativen
Pos.
5
BOSCH Netzanschlussleitung AUS 2,6m 2 x 0,75mm PVC | Ersatzteile für GSS 16 A | 2604460139
Hersteller: BOSCH
Artikelnummer: EB-0601289037-2604460139
nur Informationsartikel
Nie mehr lieferbar
keine Alternativen
Pos.
6
BOSCH Tülle Ø8,2 MM | Ersatzteile für GSS 16 A | 2600703008
Hersteller: BOSCH
Artikelnummer: EB-0601289037-2600703008
nur Informationsartikel
Nie mehr lieferbar
keine Alternativen
Pos.
7
BOSCH Leitungshalter | Ersatzteile für GSS 16 A | 2601035001
Hersteller: BOSCH
Artikelnummer: EB-0601289037-2601035001
Netto: 3,94 € zzgl. MwSt.
zzgl. 6,90 € Versand (brutto)
einmalig pro Bestellung

Lieferzeit: 5 Werktage

Pos.
9
BOSCH Hinweisschild SONNENSEITE | Ersatzteile für GSS 16 A | 2601118589
Hersteller: BOSCH
Artikelnummer: EB-0601289037-2601118589
nur Informationsartikel
Nie mehr lieferbar
keine Alternativen
Pos.
11
BOSCH Druckfeder | Ersatzteile für GSS 16 A | 2604610026
Hersteller: BOSCH
Artikelnummer: EB-0601289037-2604610026
Netto: 4,56 € zzgl. MwSt.
zzgl. 6,90 € Versand (brutto)
einmalig pro Bestellung

Lieferzeit: 5 Werktage

Pos.
13
BOSCH Rillenkugellager 7x19x6 | Ersatzteile für GSS 16 A | 1900905044
Hersteller: BOSCH
Artikelnummer: EB-0601289037-1900905044
Netto: 7,66 € zzgl. MwSt.
zzgl. 6,90 € Versand (brutto)
einmalig pro Bestellung

Lieferzeit: 5 Werktage

Pos.
14
BOSCH Rillenkugellager | Ersatzteile für GSS 16 A | 1900905048
Hersteller: BOSCH
Artikelnummer: EB-0601289037-1900905048
nur Informationsartikel
Nie mehr lieferbar
keine Alternativen
Pos.
16
BOSCH Bürstenhalter | Ersatzteile für GSS 16 A | 2604449027
Hersteller: BOSCH
Artikelnummer: EB-0601289037-2604449027
Netto: 3,94 € zzgl. MwSt.
zzgl. 6,90 € Versand (brutto)
einmalig pro Bestellung

Lieferzeit: 5 Werktage

Pos.
19
BOSCH Schraube 4x16 | Ersatzteile für GSS 16 A | 2603490022
Hersteller: BOSCH
Artikelnummer: EB-0601289037-2603490022
Netto: 3,60 € zzgl. MwSt.
zzgl. 6,90 € Versand (brutto)
einmalig pro Bestellung

Lieferzeit: 5 Werktage

Pos.
25
BOSCH Gehäusedeckel BLAU | Ersatzteile für GSS 16 A | 2605500094
Hersteller: BOSCH
Artikelnummer: EB-0601289037-2605500094
nur Informationsartikel
Nie mehr lieferbar
keine Alternativen
Pos.
27
BOSCH Leitblech | Ersatzteile für GSS 16 A | 2600034000
Hersteller: BOSCH
Artikelnummer: EB-0601289037-2600034000
nur Informationsartikel
Nie mehr lieferbar
keine Alternativen
Pos.
28
BOSCH Abdeckblech | Ersatzteile für GSS 16 A | 2600034001
Hersteller: BOSCH
Artikelnummer: EB-0601289037-2600034001
nur Informationsartikel
Nie mehr lieferbar
keine Alternativen
Pos.
29
BOSCH Schutzkappe | Ersatzteile für GSS 16 A | 2605510033
Hersteller: BOSCH
Artikelnummer: EB-0601289037-2605510033
Netto: 3,60 € zzgl. MwSt.
zzgl. 6,90 € Versand (brutto)
einmalig pro Bestellung

Lieferzeit: 5 Werktage

Pos.
30
BOSCH Verbindungsleitung L=63 MM WEISS | Ersatzteile für GSS 16 A | 2604448104
Hersteller: BOSCH
Artikelnummer: EB-0601289037-2604448104
Netto: 3,94 € zzgl. MwSt.
zzgl. 6,90 € Versand (brutto)
einmalig pro Bestellung

Lieferzeit: 5 Werktage

Pos.
31
BOSCH Anschlussleitung L=110MM WEISS | Ersatzteile für GSS 16 A | 2604448105
Hersteller: BOSCH
Artikelnummer: EB-0601289037-2604448105
nur Informationsartikel
Nie mehr lieferbar
keine Alternativen
Pos.
32
BOSCH Klemmenleiste 2-POLIG | Ersatzteile für GSS 16 A | 1901091101
Hersteller: BOSCH
Artikelnummer: EB-0601289037-1901091101
nur Informationsartikel
Nie mehr lieferbar
keine Alternativen
Pos.
33
BOSCH Flachstecker | Ersatzteile für GSS 16 A | 2604477002
Hersteller: BOSCH
Artikelnummer: EB-0601289037-2604477002
nur Informationsartikel
Nie mehr lieferbar
keine Alternativen
Pos.
35
BOSCH Gummipuffer | Ersatzteile für GSS 16 A | 2603100049
Hersteller: BOSCH
Artikelnummer: EB-0601289037-2603100049
nur Informationsartikel
Nie mehr lieferbar
keine Alternativen
Pos.
36
BOSCH Anschlussstutzen SCHWARZ | Ersatzteile für GSS 16 A | 2605702007
Hersteller: BOSCH
Artikelnummer: EB-0601289037-2605702007
nur Informationsartikel
Nie mehr lieferbar
keine Alternativen
Pos.
37
BOSCH Lüfter | Ersatzteile für GSS 16 A | 2606610054
Hersteller: BOSCH
Artikelnummer: EB-0601289037-2606610054
nur Informationsartikel
Nie mehr lieferbar
keine Alternativen
Pos.
38
BOSCH Rundgummi Ø 11,3x23,5 MM | Ersatzteile für GSS 16 A | 1603101018
Hersteller: BOSCH
Artikelnummer: EB-0601289037-1603101018
nur Informationsartikel
Nie mehr lieferbar
keine Alternativen
Pos.
39
BOSCH Fussplatte | Ersatzteile für GSS 16 A | 2608000052
Hersteller: BOSCH
Artikelnummer: EB-0601289037-2608000052
nur Informationsartikel
Nie mehr lieferbar
keine Alternativen
Pos.
42
BOSCH Klemmstreifen | Ersatzteile für GSS 16 A | 2601007020
Hersteller: BOSCH
Artikelnummer: EB-0601289037-2601007020
nur Informationsartikel
Nie mehr lieferbar
keine Alternativen
Pos.
43
BOSCH Rillenkugellager 12x28x8 | Ersatzteile für GSS 16 A | 2600905045
Hersteller: BOSCH
Artikelnummer: EB-0601289037-2600905045
Netto: 13,81 € zzgl. MwSt.
zzgl. 6,90 € Versand (brutto)
einmalig pro Bestellung

Lieferzeit: 5 Werktage

Pos.
44
BOSCH Unterlegscheibe | Ersatzteile für GSS 16 A | 2600103002
Hersteller: BOSCH
Artikelnummer: EB-0601289037-2600103002
nur Informationsartikel
Nie mehr lieferbar
keine Alternativen
Pos.
45
BOSCH Filzstreifen | Ersatzteile für GSS 16 A | 2601005010
Hersteller: BOSCH
Artikelnummer: EB-0601289037-2601005010
nur Informationsartikel
Nie mehr lieferbar
keine Alternativen
Pos.
47
BOSCH Blechschraube | Ersatzteile für GSS 16 A | 2603435086
Hersteller: BOSCH
Artikelnummer: EB-0601289037-2603435086
Netto: 3,63 € zzgl. MwSt.
zzgl. 6,90 € Versand (brutto)
einmalig pro Bestellung

Lieferzeit: 5 Werktage

Pos.
49
BOSCH Torx-Linsenschraube 4x25 | Ersatzteile für GSS 16 A | 2603490024
Hersteller: BOSCH
Artikelnummer: EB-0601289037-2603490024
Netto: 3,94 € zzgl. MwSt.
zzgl. 6,90 € Versand (brutto)
einmalig pro Bestellung

Lieferzeit: 5 Werktage

Pos.
50
BOSCH Senkschraube DIN 965-M4x12-8.8 | Ersatzteile für GSS 16 A | 2910871122
Hersteller: BOSCH
Artikelnummer: EB-0601289037-2910871122
nur Informationsartikel
Nie mehr lieferbar
keine Alternativen
Pos.
51
BOSCH Gewindefurchschraube M4x8 | Ersatzteile für GSS 16 A | 2603410048
Hersteller: BOSCH
Artikelnummer: EB-0601289037-2603410048
Netto: 3,94 € zzgl. MwSt.
zzgl. 6,90 € Versand (brutto)
einmalig pro Bestellung

Lieferzeit: 5 Werktage

Pos.
53
BOSCH Torx-Linsenschraube 4x8 | Ersatzteile für GSS 16 A | 2603490020
Hersteller: BOSCH
Artikelnummer: EB-0601289037-2603490020
Netto: 3,63 € zzgl. MwSt.
zzgl. 6,90 € Versand (brutto)
einmalig pro Bestellung

Lieferzeit: 5 Werktage

Pos.
55
BOSCH Griffkappe | Ersatzteile für GSS 16 A | 2600591005
Hersteller: BOSCH
Artikelnummer: EB-0601289037-2600591005
nur Informationsartikel
Nie mehr lieferbar
keine Alternativen
Pos.
56
BOSCH Unterlegscheibe | Ersatzteile für GSS 16 A | 2600100043
Hersteller: BOSCH
Artikelnummer: EB-0601289037-2600100043
nur Informationsartikel
Nie mehr lieferbar
keine Alternativen
Pos.
57
BOSCH Ausgleichgewicht | Ersatzteile für GSS 16 A | 2608012003
Hersteller: BOSCH
Artikelnummer: EB-0601289037-2608012003
nur Informationsartikel
Nie mehr lieferbar
keine Alternativen
Pos.
61
BOSCH Klebeband | Ersatzteile für GSS 16 A | 2600005010
Hersteller: BOSCH
Artikelnummer: EB-0601289037-2600005010
nur Informationsartikel
Nie mehr lieferbar
keine Alternativen
Pos.
62
BOSCH Zwischenring | Ersatzteile für GSS 16 A | 2600100094
Hersteller: BOSCH
Artikelnummer: EB-0601289037-2600100094
nur Informationsartikel
Nie mehr lieferbar
keine Alternativen
Pos.
65
BOSCH Filzring | Ersatzteile für GSS 16 A | 2600108013
Hersteller: BOSCH
Artikelnummer: EB-0601289037-2600108013
Netto: 3,94 € zzgl. MwSt.
zzgl. 6,90 € Versand (brutto)
einmalig pro Bestellung

Lieferzeit: 5 Werktage

Pos.
66
BOSCH Filzring | Ersatzteile für GSS 16 A | 2600108012
Hersteller: BOSCH
Artikelnummer: EB-0601289037-2600108012
Netto: 3,60 € zzgl. MwSt.
zzgl. 6,90 € Versand (brutto)
einmalig pro Bestellung

Lieferzeit: 5 Werktage

Pos.
67
BOSCH Filzring | Ersatzteile für GSS 16 A | 2600101025
Hersteller: BOSCH
Artikelnummer: EB-0601289037-2600101025
Netto: 3,60 € zzgl. MwSt.
zzgl. 6,90 € Versand (brutto)
einmalig pro Bestellung

Lieferzeit: 5 Werktage

Pos.
68
BOSCH Filzring | Ersatzteile für GSS 16 A | 2600005006
Hersteller: BOSCH
Artikelnummer: EB-0601289037-2600005006
nur Informationsartikel
Nie mehr lieferbar
keine Alternativen
Pos.
252
BOSCH Entstörkondensator | Ersatzteile für GSS 16 A | 2607329131
Hersteller: BOSCH
Artikelnummer: EB-0601289037-2607329131
nur Informationsartikel
Nie mehr lieferbar
keine Alternativen
Pos.
653
BOSCH Schleifblatt | Ersatzteile für GSS 16 A | 2608604561
Hersteller: BOSCH
Artikelnummer: EB-0601289037-2608604561
nur Informationsartikel
Nie mehr lieferbar
keine Alternativen
Pos.
654
BOSCH Staubbeutel 1 Stück | Ersatzteile für GSS 16 A | 2605411069
Hersteller: BOSCH
Artikelnummer: EB-0601289037-2605411069
Netto: 5,17 € zzgl. MwSt.
zzgl. 6,90 € Versand (brutto)
einmalig pro Bestellung

Lieferzeit: 5 Werktage

Pos.
655
BOSCH Anschlussstutzen | Ersatzteile für GSS 16 A | 2605702031
Hersteller: BOSCH
Artikelnummer: EB-0601289037-2605702031
nur Informationsartikel
Nie mehr lieferbar
keine Alternativen
Pos.
657
BOSCH O-Ring 20,0x1,5 MM | Ersatzteile für GSS 16 A | 1610210075
Hersteller: BOSCH
Artikelnummer: EB-0601289037-1610210075
Netto: 4,56 € zzgl. MwSt.
zzgl. 6,90 € Versand (brutto)
einmalig pro Bestellung

Lieferzeit: 5 Werktage

Pos.
740
BOSCH Schleifplatte | Ersatzteile für GSS 16 A | 2608000071
Hersteller: BOSCH
Artikelnummer: EB-0601289037-2608000128
nur Informationsartikel
Nie mehr lieferbar
keine Alternativen
Pos.
754
BOSCH Staubbeutel | Ersatzteile für GSS 16 A | 2605411009
Hersteller: BOSCH
Artikelnummer: EB-0601289037-2605411009
Netto: 15,73 € zzgl. MwSt.
zzgl. 6,90 € Versand (brutto)
einmalig pro Bestellung

Lieferzeit: 5 Werktage

Pos.
808
BOSCH Typenschild | Ersatzteile für GSS 16 A | 2601110699
Hersteller: BOSCH
Artikelnummer: EB-0601289037-2601110699
nur Informationsartikel
Nie mehr lieferbar
keine Alternativen
Pos.
810
BOSCH Kohlebürstensatz | Ersatzteile für GSS 16 A | 2607014001
Hersteller: BOSCH
Artikelnummer: EB-0601289037-2607014001
nur Informationsartikel
Nie mehr lieferbar
keine Alternativen
Pos.
826
BOSCH Lagerflansch | Ersatzteile für GSS 16 A | 2605703901
Hersteller: BOSCH
Artikelnummer: EB-0601289037-2605703901
nur Informationsartikel
Nie mehr lieferbar
keine Alternativen
Pos.
839
BOSCH Schwingplatte | Ersatzteile für GSS 16 A | 2608000914
Hersteller: BOSCH
Artikelnummer: EB-0601289037-2608000914
nur Informationsartikel
Nie mehr lieferbar
keine Alternativen
Pos.
841
BOSCH Klemmbügel | Ersatzteile für GSS 16 A | 2608045900
Hersteller: BOSCH
Artikelnummer: EB-0601289037-2608045900
nur Informationsartikel
Nie mehr lieferbar
keine Alternativen

Angaben zur Produktsicherheit

Hersteller:
Robert Bosch Power Tools GmbH
Postfach 30 02 20
70442 Stuttgart

E-Mail:
kontakt@bosch.de